本期分享的这套由轩怡家装在广州落地的107㎡住宅,通过经典的轻法式设计语言,结合开放式布局,实现了“空间翻倍”的视觉效果,非常适合广佛喜欢轻法式装修的业主参考。
#案例信息
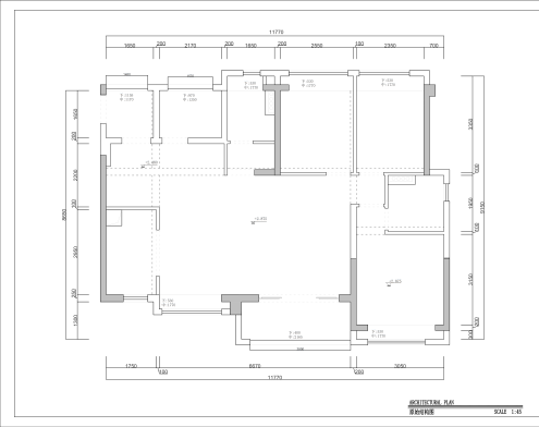
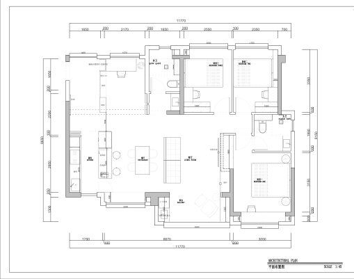
地点:广州 小区:合生**城 户型:107㎡ 三房两厅 风格:轻法式风格


一 客厅:横厅+阳台,打造法式通透感
本案的亮点在于对公共区域的重新规划。客厅、餐厅、厨房采用一体化设计,形成开阔的横厅格局,并将阳台纳入室内。
这种开放式布局不仅让自然采光遍布整个空间,视觉上也放大了面积,非常适合追求通透感的小户型装修。

摈弃了传统电视墙,采用可移动电视,让客厅功能更加灵活多变。

在风格塑造上,注重颜值与细节,采用种种经典法式元素,营造出复古感,令法式优雅与复古沉稳得到了完美平衡。

设计师运用了多个标志性元素:人字拼鱼骨木地板延伸视线,胡桃木与半墙牛油果绿的色彩碰撞,以及墙面精致的石膏线条与弧形造型。

这些细节柔化了空间的厚重感,注入浪漫气息,让家在优雅中不失温馨,还原业主对法式复古风的想象。
二 餐厨:系统定制,解决收纳难题
再美的家也离不开收纳。通过全屋定制柜体,彻底解决了常见户型的收纳不足问题。

厨房与餐厅之间,一道黑框弧形玻璃移门成为点睛之笔。
它既保持了空间的通透感,又能隔绝油烟。同时,大理石岛台的设计兼具操作台与社交属性,成为厨房功能的延展。
这种“隔而不断”的设计手法,是轩怡家装对法式家居生活的深刻理解,非常适合应用于广佛装修。

#业主反馈
业主表示:“轩怡家装不仅实现了我理想中的轻法式复古风,还让家里空间利用率提升。收纳井井有条,生活更舒适,非常推荐给准备广州装修或佛山装修的朋友们。”
轩怡家装官方联系方式:18529185208(免费预约量房、免费设计方案、免费精准报价)
已有 78770 位业主获取了装修报价
㎡
选择您需要的专享服务

平台信息提交-隐私协议
· 隐私政策
暂无内容