65㎡小户型装修如何让三代都住得舒服?针对天河御品旧房采光不足、收纳匮乏、动线混乱的痛点,轩怡家装通过开放式布局重构空间逻辑,以"减法美学+机能收纳"打造出兼具温暖与实用的理想家。
项目地址:广州天河御品 户型:3房2厅2卫 面积:65㎡

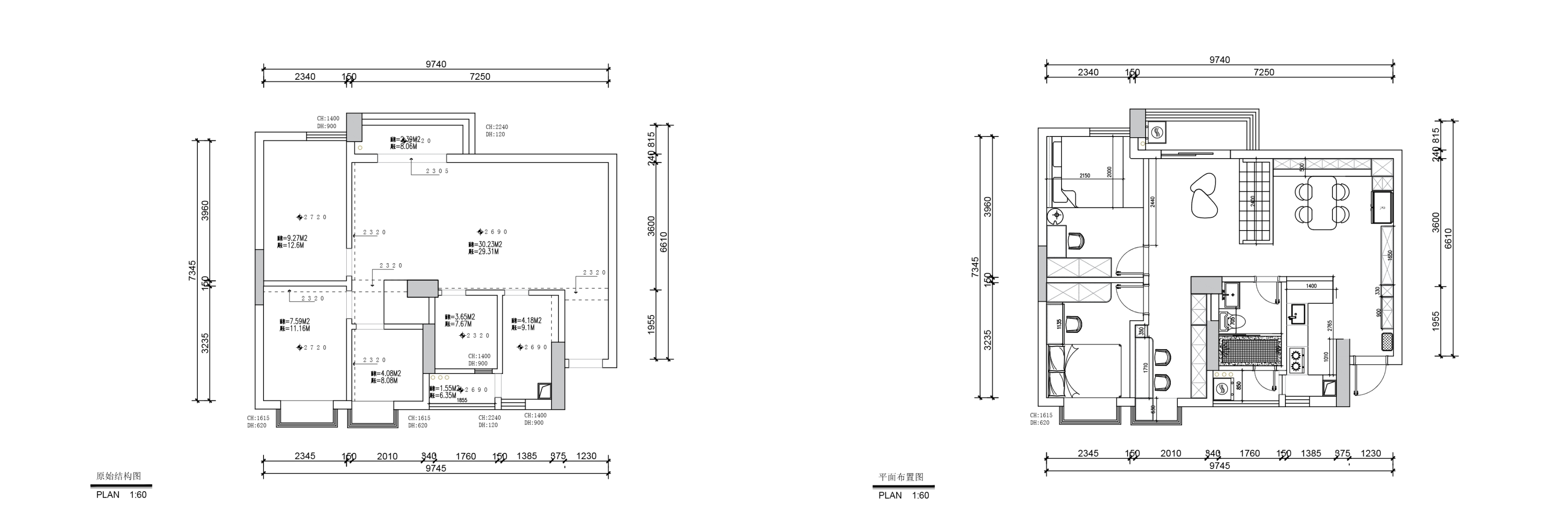
①厨房空间狭长,利用率差;
②卫生间通风采光受限,湿气难消散;
③公区但单面采光,室内昏暗。
①厨房改为开放式,做加U型布局,实现小空间效率高利用;
②从玄关到餐厅的整面柜,承担全屋收纳任务;
③卫生间门位更改,扩窗为门,加强空气对流;
④小房舍弃掉改为开放式书房,客厅实现双面采光,空气对流更好。

小空间大收纳,进门右侧洞洞板可随时悬挂钥匙、包包等小物件。定制柜中部嵌入感应灯带,归家自动亮起,带给生活新一重的仪式感。


客厅采用横厅布局,空间更显通透,家庭互动性强。橘棕调沙发、奶茶色窗帘、绿植等元素,形成自然材质对话,瞬间将中古风氛围拉满。

黑色编藤电视柜融入复古做旧工艺,带来高等精致感。精简家具与开放布局,让小户型也能宽敞明亮。

拆除墙体后,厨房做开放式增加入户通透性,转角吧台增加操作台面,功能布局更为合理;奶白色橱柜视觉上清爽干净,搭配复古花型地砖,实用耐看。

餐厅与客厅相连,胡桃木餐桌搭配同色系细脚餐椅,视觉轻盈。

冰箱做嵌入处理,严丝合缝不突兀。玻璃柜收纳展示两不误,材质的变换更让视线随之转折流动,空间更显灵动。

原本的小房间改为开放式书房,一侧悬浮式书桌满足办公需求,另一侧打造整墙到顶定制柜,为全屋收纳建立新秩序。

浮华逝去,留下的是属于自己的静谧时光。主卧没有过多的装饰,一切围绕功能展开,奶白与木色交融出温柔的色彩阶梯,温润平和;

长辈房延续主卧设计语言,沉稳大方;到顶衣柜从天花板延伸至地面,收纳换季衣物毫无压力。
好的装修从不是强行改变空间,而是唤醒它与生活的共鸣。天河御品这65㎡小户型,轩怡家装用中古风的温润消解了面积局促,在开放式格局里交织出生活的诗。
Q:开放式厨房会不会让家里显得拥挤杂乱?
A:通过合理规划动线和功能分区可以有用解决;使用移动式调味篮和收纳小推车,保持台面整洁;墙地砖尽量选择同色系,视觉上更显统一协调。
Q:小户型采用中古风装修需要注意哪些细节?
A:重点把握材质的自然质感与色彩的平衡感。建议选择哑光质感的主材,局部点缀金属或玻璃提升层次;色彩以大地色系为基础,局部点缀色注入复古元素。
Q:小户型收纳总是不够用怎么办?
A:关键在垂直空间的充分利用,定制家具时可选择拉篮层架等功能设计,提升单平利用率。日常养成使用后归位习惯,定期清理闲置物品,保持空间清爽。
轩怡家装官方联系方式:18529185208(免费预约量房、免费设计方案、免费精准报价
已有 78770 位业主获取了装修报价
㎡
选择您需要的专享服务

平台信息提交-隐私协议
· 隐私政策
暂无内容