当生活在都市的人渴望一份自然的生机与秩序的宁静,现代原木风装修便成为理想之选。本期为您解析轩怡家装打造的172m²私宅案例,看设计师如何巧妙运用原木、光线与结构,将一处寻常空间转化为兼具美学与功能的诗意栖居。本案不仅展现了现代原木风装修的温润质感,更通过一系列匠心设计,为同类户型的装修提供了颇具参考价值的范本。
·案例信息
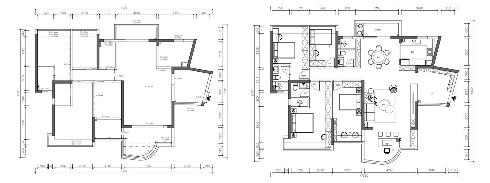
地点:广州 小区:都湖** 户型:172m² 4房2厅 风格:现代原木风
·设计亮点
①化弊为利:巧借入户异形结构,融入端景与定制柜,将劣势转化为独特风格表达。
②功能重组:大阳台一分为二,一段改为茶室延展客厅功能,另一段纳入男孩房增加面积。
③布局优化:厨房通过U型布局消解异形问题,实现视觉规整与操作流畅。
④细节柔化:公区顶面采用弧度处理,柔化结构转折,营造温和包容的空间氛围。


步入空间,首先映入眼帘的是设计师对原木元素的精妙运用。柜体依托墙面顺势展开,原木的温润质感与灯带、岩板的现代气息交织,勾勒出入户的惊喜。
纱帘模糊了落地窗的内外边界,让自然光柔和渗入,即刻定义了这套私宅自然的整体风格,巧妙地将入户的异形结构劣势转化为独具特色的视觉端景。

客厅将原木材质作为空间筋骨,搭配蹁跹而入的光影,营造出被暖意包裹的静谧氛围。护墙板的利落与沙发茶几的柔美曲线相得益彰,平衡了艺术性与生活感。
电视背景墙的设计尤为精妙,通过柱体融合、暗装灯带等细节,让功能区自然融入整体,成为“家”不可分割的一部分。

将阳台调整为茶室并并入客厅,更是本案现代原木风设计的点睛之笔,闲时品茗赏景,尽享人生真味。

餐厅区域,一张圆桌成为视觉焦点,恰到好处地凝聚家庭用餐的温馨时光。原木与白的经典配色在此延续,尽显温柔质朴。
餐边柜综合了客厅与入户柜体的设计语义,一列透明的展示柜为业主生活增添乐趣,体现了现代家居设计中对个性化需求的尊重。

厨房通过打造U型格局,将空间拉至方正,冰箱内嵌,动线合理,为零碎物品收纳和顺畅烹饪梳理出完美秩序。


主卧衣柜反常规设计,中部留空融入岩板,赋予柜体轻盈灵动之感。
梳妆区格栅背景墙自带韵律,丰富了材质层次。宽大飘窗铺设软垫,以柔和的皱褶进一步回应了主人对温润木质生活的向往。

男孩房在保留现代原木风元素的基础上做减法,布局简洁明快。通顶柜配长拉手,线条简练。L型书桌布局贴合转角,巧妙规划出学习与展示爱好的小天地。

女孩房针对小空间,设计师通过借用飘窗结构,搭建出舒适空间。窗台上设了软垫,摆上简易坐垫。闲时可极目远眺,望尽自然之景。

次卧采用榻榻米等方式,成功整合了学习、休息与收纳功能,证明了现代原木风格同样适用于紧凑空间,并能打造出舒适实用的居住环境。

墙地通铺减少视觉打断,保持了空间的整体感。顶面采用大板设计,植入的黑色线条与淋浴门自然呼应,于细节处增添丰盈的层次,体现了现代简约风格对完整性与质感的追求。
这套172m²的私宅案例充分证明了现代原木风装修的强大包容性与生命力。它并非元素的简单堆砌,而是通过巧妙的结构改造、材质的平衡搭配以及对日常需求的深刻洞察,让家成为一个可逐梦、可守心的温暖容器。
轩怡家装官方联系方式:18529185208(免费预约量房、免费设计方案、免费精准报价)
已有 78770 位业主获取了装修报价
㎡
选择您需要的专享服务

平台信息提交-隐私协议
· 隐私政策
暂无内容