温然居雅室,岁月自含香
本套100㎡奶油中古风美宅
以中古奶油风为灵魂脉络
依托300项人性化定制的专业深耕
于方寸之间
勾勒出松弛有度、精致耐看的居家图景
设计亮点:
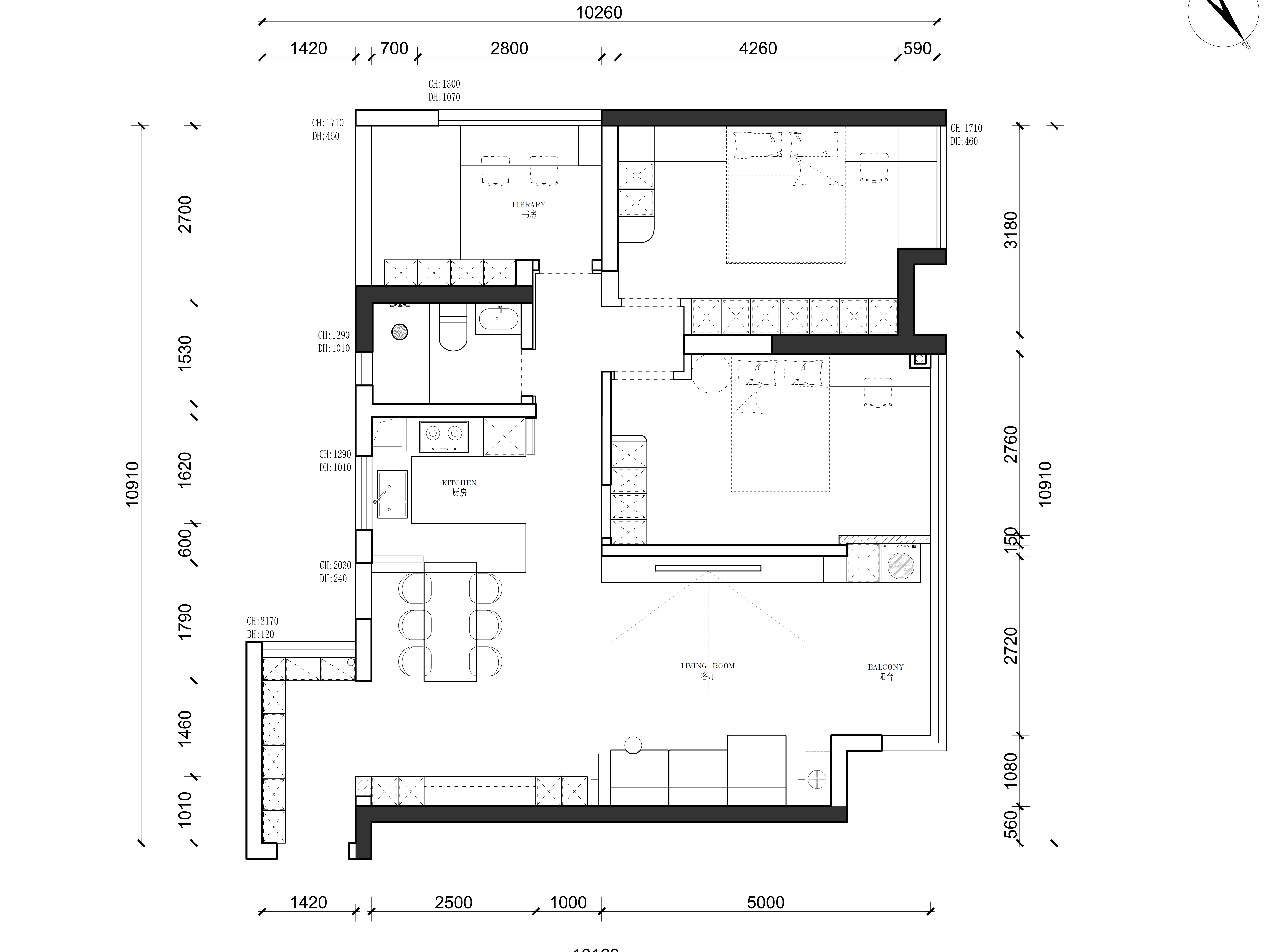
1、巧解入户对视痛点,重构空间动线,优化全屋格局;
2、餐厨全通互动设计,打破封闭格局,拉近家人互动距离;
3、阳台一分为二巧布局,实现次卧、客厅空间扩容。


玄关
入户直面窗户的户型短板,设计师以定制柜体搭配精致装饰,弱化直视突兀感,巧妙化解户型缺陷。归家雅致从容,仪式感与实用性拉满。

客厅
客厅全屋通铺柔光砖,奠定软糯奶油基调,柔光不刺眼,尽显温润通透。

硬装摒弃冗余造型,极简白墙留白写意,搭配中古色短脚沙发,轻盈线条消解空间厚重感,辅以艺术挂画与白色地毯,柔化空间棱角,平添几分慵懒雅致。

沙发一隅,中古落地灯暖光轻洒,生机绿植与懒人椅相映成趣,无需刻意雕琢,便自成一幅静谧治愈的居家画面。

电视墙以简约白墙为底,阳台衔接处做弧形柔化处理,嵌入绿植点缀,悄然融入侘寂风的自然随性,搭配胡桃木电视柜,木作肌理与纯白底色碰撞,简约间尽显立体高级感。

设计师巧做空间分割,将客厅阳台一分为二,既扩容次卧尺度,又打通客阳空间,大幅拉伸视觉纵深感,让小空间尽显开阔格局。

厨房
半开放式厨房打破封闭,增设收纳台面,与餐厅形成互动式格局,自然光线肆意穿梭,驱散空间暗沉。

定制上下橱柜,中古色系统一和谐,极致利用每一寸空间,让烟火气也能兼具精致感。

餐厅
餐厅选用胡桃木餐桌椅,与厨台无缝衔接,视觉连贯统一,垂坠而下的中古吊灯,暖光轻覆餐桌,将用餐氛围感拉满。

墙面定制到顶餐边柜,白+胡桃木经典配色,辅以玻璃门、隐藏灯带与精致端景,光影交错间,收纳角落熠熠生辉。

餐厨客一体化布局,动线流畅、视野开阔,尽显居家温馨。

主卧
主卧延续全屋中古奶油基调,床头半面胡桃木拼接纯白墙面,材质碰撞间质感尽显。

定制到顶衣柜收纳,舍弃传统笨重床头柜,改用悬浮桌设计,轻盈利落且便于日常清扫。

飘窗延伸柜体设计,兼顾收纳与休闲功能,打造静谧松弛的私属休憩领地。

次卧
次卧纳入阳台面积后,空间豁然开朗,风格与主卧一脉相承,床尾添置中古落地灯与棕色懒人椅,慵懒氛围感拉满,宜居度拉满。

书房
书房以胡桃木榻榻米为核心,集收纳、睡眠、阅读三大功能于一体,最大化盘活小空间。

米色折叠窗帘可自由调节光线,搭配悬浮长书桌,静谧氛围萦绕其间,无论是业主办公,还是孩子静心学习,都能褪去浮躁,安享慢下来的居家时光。

卫生间
摒弃花哨装饰,以简约质感瓷砖铺陈,色调柔和。

功能分区清晰合理,动线流畅,易打理且实用性拉满,于简约细节中,兑现宜居生活的本质需求。

轩怡家装官方联系方式:18529185208(免费预约量房、免费设计方案、免费精准报价)
已有 78770 位业主获取了装修报价
㎡
选择您需要的专享服务

平台信息提交-隐私协议
· 隐私政策
暂无内容