轩怡家装佛山装修案例 |108㎡现代简约装出高等松弛感,全屋定制收纳翻倍!
在广州装修和佛山装修市场中,如何让一套108㎡的小户型既满足实用功能,又拥有高等质感?本案是轩怡家装在佛山南海区的一套新房装修(同样适用于二手房装修)实景,完美诠释了现代简约风格的魅力。整个空间通过克制的设计手法,解决了小户型装修常见的收纳与采光难题,为广佛地区的业主提供了较好的装修案例参考。
项目信息
地点:佛山
小区:狮山镇奥园***城
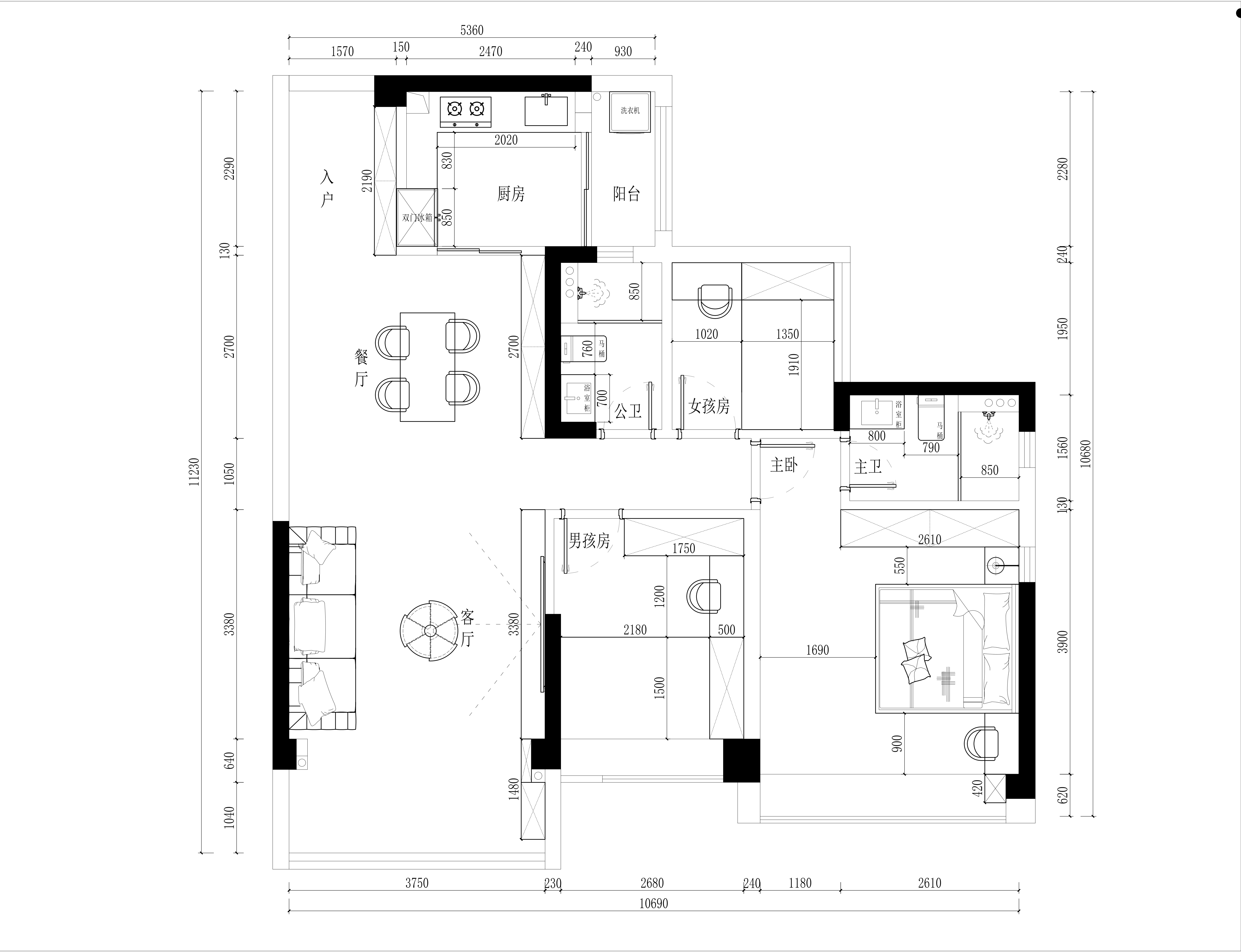
户型:108㎡ 三房两厅
格:现代简约风格


对于小户型装修设计而言,避免压抑、提升开阔感是关键。轩怡家装在本案中采用了经典的无主灯设计,通过线性灯带和点状光源的组合,营造出丰富的光影层次,让空间更显高挑。同时,客厅灰色亮面大理石瓷砖通铺,搭配透明玻璃茶几等通透材质,能有用反射光线,延伸视觉,这正是小户型实现“空间放大术”的**技巧。
无论新房装修流程如何规划,收纳都是重中之重。本案充分展示了轩怡家装在定制化设计上的功力。从餐厅中部镂空的大容量橱柜,到主卧的悬浮桌柜和到顶衣柜,再到次卧功能强大的榻榻米+桌柜一体化设计,每一处都精细地提升了空间利用率。这种“量身定制”的思路,能完美融入装修流程,确保家的整洁与美观,是把控装修预算、避免浪费的明智之举。

现代简约风格的精髓在于“少即是多”。设计师以棕、灰、黑为基调,通过岩板、木饰面、皮质沙发等不同材质的肌理对比,在理性中营造出细腻的层次与温度。

电视墙嵌入式设计、跳跃的网红小马椅和暴力熊陈列,则为空间注入了活力与个性。这种克制而精细的设计,避免了过度装饰,让家成为放松身心的港湾,也符合许多业主对新房装修后**低甲醛居住环境的追求。


本案为佛山装修和广州装修的业主提供了一个高质量的范本。在选择装修公司时,可以参考此类实景装修案例来判断其设计落地能力。同时,明晰的装修合同与合理的装修预算是保证装修房子的步骤流程顺利推进的基础。无论是旧房翻新还是新房装修设计,一个成功的家装项目,离不开工匠公司的规划与执行。
已有 78770 位业主获取了装修报价
㎡
选择您需要的专享服务

平台信息提交-隐私协议
· 隐私政策
暂无内容