轩怡家装法式改造案例:110㎡精装房蜕变记,预算不高却美出高等感!
在广州装修市场中,千篇一律的精装房如何变身理想之家是众多业主的难题。本期分享的这套由轩怡家装在广州花都区颐安俪都府落地的110㎡案例,便是一次成功的精装房改造示范。设计师通过引入现代法式设计语言,在不大动干戈的前提下,用细节与比例让空间焕然一新,为广东装修,特别是广佛装修的业主提供了宝贵灵感。
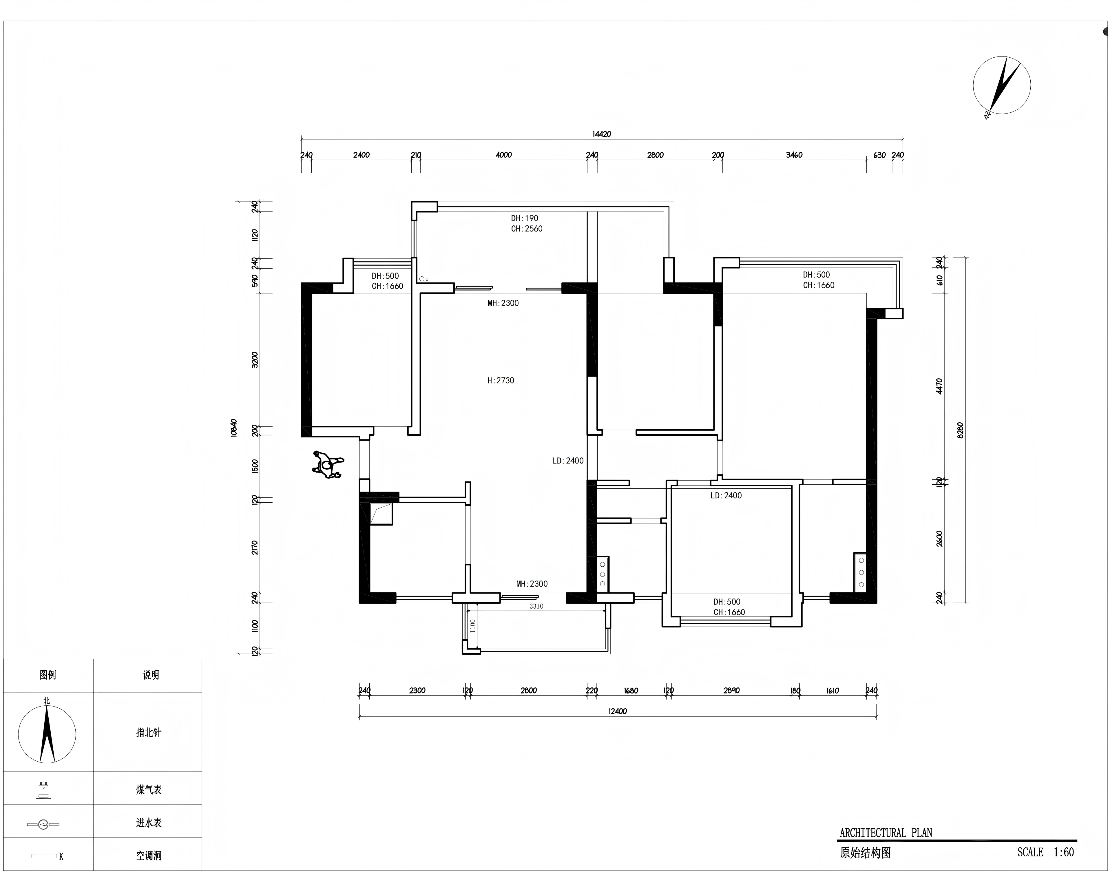
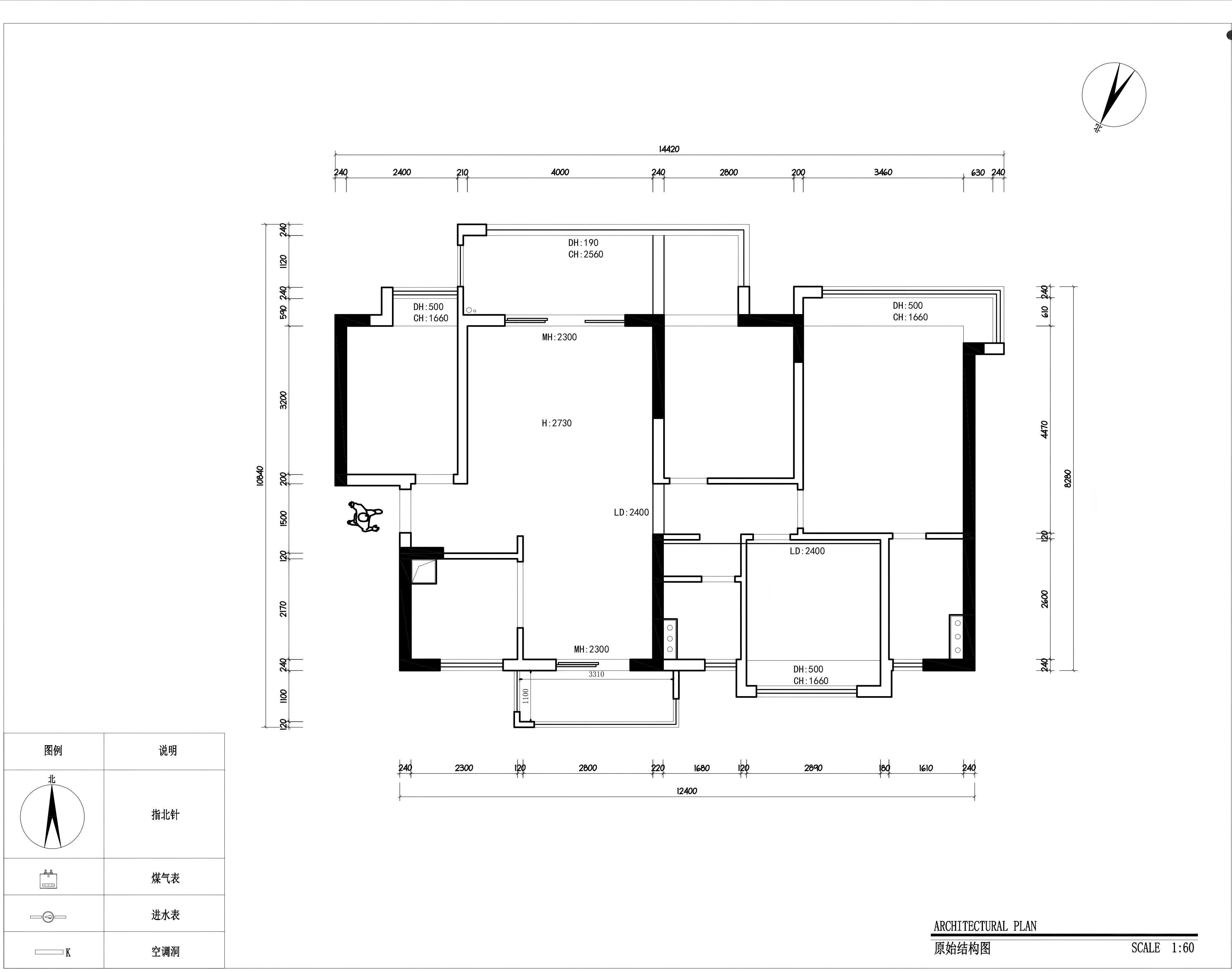
项目信息
地点:广州花都
小区:颐安俪都府
户型:110㎡ 三房两厅
风格:法式风格


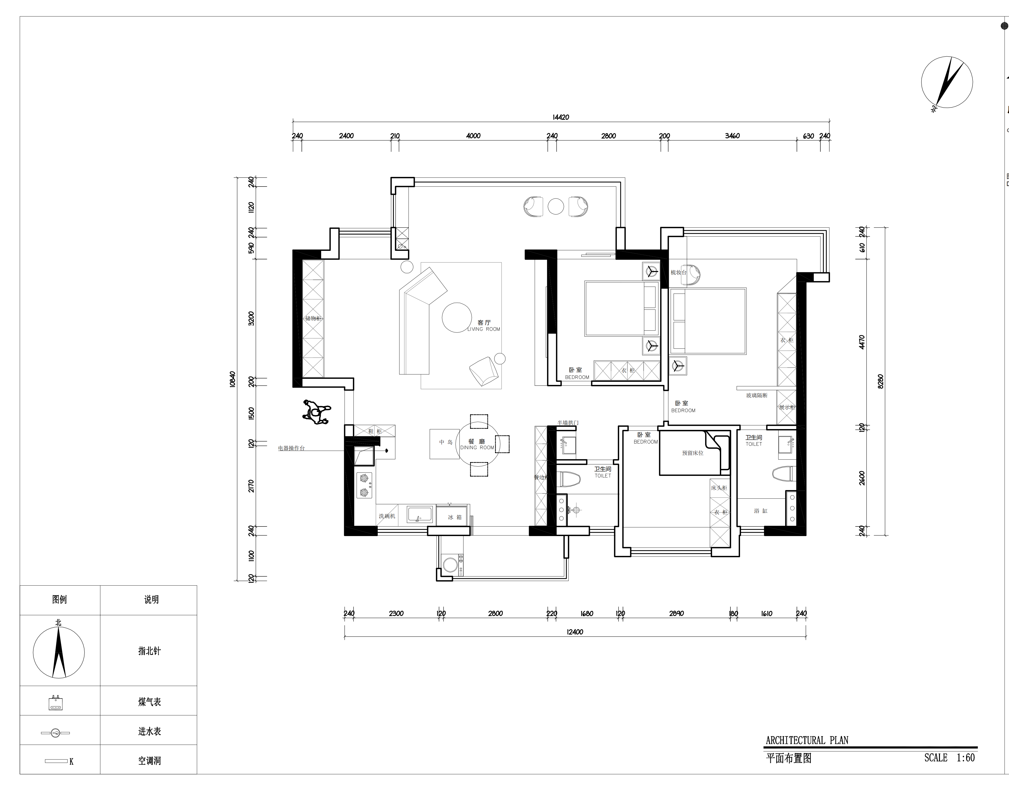
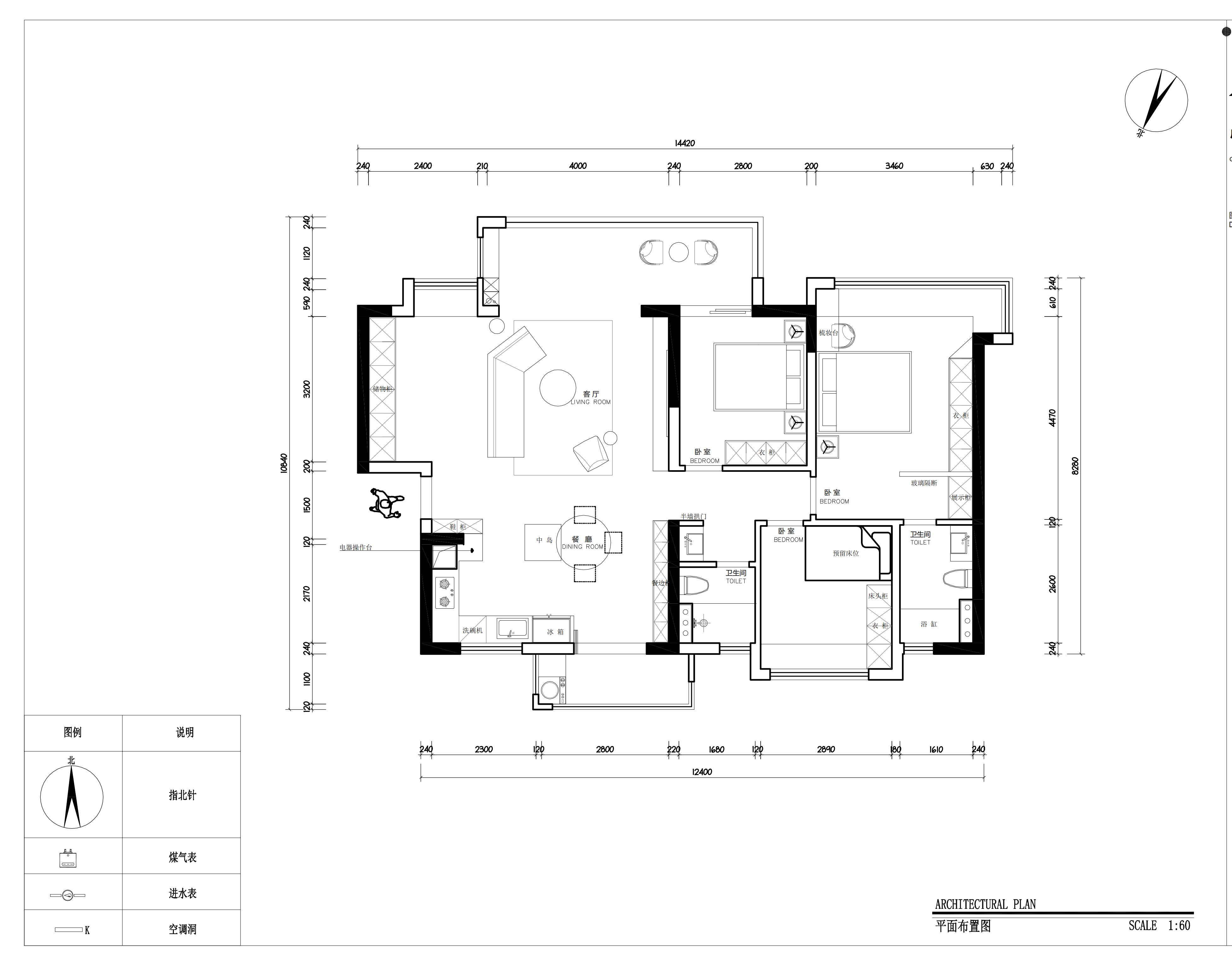
一、 格局微改造:开放式动线焕发大宅感
精装房改造的关键在于优化布局。轩怡家装首先拆除了不必要的隔阂,打造客餐厨一体的开放式动线,极大地提升了空间的通透性与互动性。

更巧妙的是,将一间利用率低的小次卧改造为半开放式办公区,利用定制桌柜作为隔断,不仅赋予了空间新功能,还实现了收纳翻倍。这种对户型的精细重塑,是本案设计的**亮点。

二、 法式灵魂:拱门与石膏线,用细节勾勒高等感
如何低成本营造法式氛围?本案给出了答案:石膏线条与弧形拱门。客厅与办公区的白墙上,通过精致的石膏线勾勒出古典比例,与柔和的拱门造型相呼应,瞬间奠定了空间的法式复古基调。这种设计手法造价相对可控,却能极有用地提升空间气质,非常适合精装房改造项目,轻松拿捏恰到好处的优雅。


三、 色彩与定制:深木黑白基调,全屋收纳隐于无形
在整体视觉上,设计师以深木、黑、白构建了克制且高等的色调体系。深色鱼骨拼地板稳重,黑白沙发与墙面形成鲜明对比,诠释出现代法式的独特张力。

同时,轩怡家装通过全屋定制系统,如沙发后的到顶收纳柜、餐厅的法式线框餐边柜以及卧室的悬浮桌柜,将储物功能完美隐藏于墙体之中,实现了“美感与实用兼得”的**终目标。



四、 精装房改造案例:选择精细公司的重要性
本案充分证明,成功的精装房改造不需要推倒重来,而是通过精细的设计进行“精细塑形”。对于广州装修和佛山装修的业主而言,在选择装修公司时,应优先考虑像轩怡家装这样拥有大量实景案例、擅长通过微改动实现大改变的公司。一个靠谱的合作伙伴,能确保从设计到落地的整个装修流程顺畅,让家的蜕变之旅省心又省力。
已有 78770 位业主获取了装修报价
㎡
选择您需要的专享服务

平台信息提交-隐私协议
· 隐私政策
暂无内容