珠江水暖,岭南春深。在广州这座既讲究烟火气又追求品质感的城市里,一个理想的家,应当既能安放事业的锋芒,也能包容成长的喧嚣。轩怡家装自1998年启航,28年来与十万家庭同舟共桨,让"幸福传三代"从承诺变为触手可及的日常。
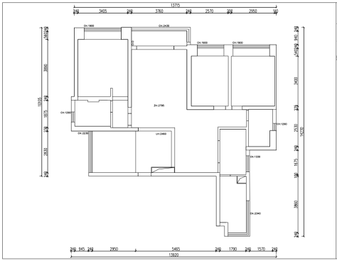
本案业主是一位事业有成的妈妈,家中两个孩子正处于活泼好动的年纪。原始户型梁柱突兀、收纳捉襟见肘,更缺乏让孩子自由奔跑的互动空间。轩怡设计师罗吴越以「成长乐园」为设计原点,将意式轻奢的精致与多孩家庭的实用需求巧妙融合——圆弧天花柔化棱角,大理石通铺延伸视野,隐形门隐藏杂乱,精准匹配五宅一生全周期居住需求,用100%工程直管的铁律和产业工人的匠心,让每一个家都经得起时光检验。


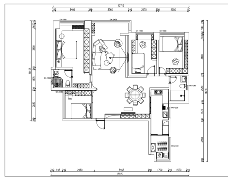
客厅以意式轻奢为基调,大理石通铺地面延伸至阳台,将珠江与城市景观引入室内。

无主灯设计搭配天花圆弧收边,弱化梁体压迫感与直角生硬感,让空间更柔和。
电视背景墙采用胡桃木格栅与白色立体柜体,圆弧过渡更显流畅,层次高级且不厚重。

棕色皮质沙发搭配几何茶几,简约大气,一家人围坐互动,轻奢空间里充满烟火温情。
餐厅是家庭互动核心区,设计师以双圆弧天花遮蔽梁柱,搭配圆形餐桌,与全屋弧线呼应,无尖锐棱角,孩子玩耍更安全。

墙面设置隐形门,隐藏杂物间与通道,保持视觉整洁,让轻奢格调完整统一。

L型厨房经外推墙面、优化布局后,操作动线流畅,岩板通顶设计大气高级,储物充足,满足多孩家庭高频烹饪需求。
主卧以低调轻奢打造业主专属放松区,大理石与格栅背景简约高级,床尾通顶衣柜储物强大,入户生活柜兼顾置物与休闲,适配事业型妈妈的日常需求。

女儿房没有做低龄化设计,以简约留白搭配橙粉色点缀,悬浮桌柜一体化设计,整合睡眠、学习、收纳功能,适配女儿未来成长。儿童房依托飘窗改造榻榻米,贯穿式书桌适配成长节奏,空间利用率大幅提升。

轩怡家装28周年始终坚持工程直管、匠心工艺,从设计落地到工艺交付,从空间规划到长期守护,轩怡家装五宅一生理念贯穿始终。28周年品牌沉淀,金钻工艺 6.0与工艺十大创新保驾护航,完善售后体系兜底,为多孩家庭、改善型业主打造可成长、耐得住时光的品质家。
轩怡家装28周年活动正在进行中,官方热线(免费预约量房/设计/报价):18529185208,欢迎有装修需求的业主咨询体验。
已有 78770 位业主获取了装修报价
㎡
选择您需要的专享服务

平台信息提交-隐私协议
· 隐私政策
暂无内容