在这座240㎡的大宅之中
设计师再造通透空间
利用理性的设计、感性的色彩
让浪漫的美式美学自由舒展
展现令人心醉的设计之美
设计亮点

▲原始结构图

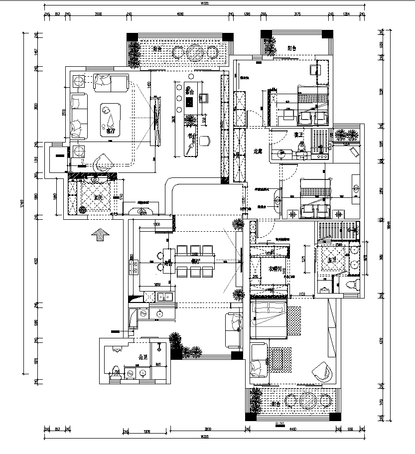
▲平面布置图
①砌墙隔出玄关,解决入户见厅的尴尬;
②做开放式厨房,U型布局提高空间利用率;
③植入中岛台衔接餐桌,丰富就餐场域功能;
④重整公区和私区动线,让家的洄游动线更清晰。


利用轻质墙打造围合式玄关,嵌入纯白定制柜,搭配复古拉手,美式复古味十足。


客厅被红砖墙一分为二,一侧是影音中心和社交场域,一侧是品茶区和办公区,一动一静,相衬相宜。

深棕皮沙发搭配孔雀蓝丝绒椅,与纯白石膏线板完美衬托出美式风情,光影之下自带浪漫气质。

红砖墙造型电视柜点亮整体空间,上部镂空格辅以照片,一座墙既是隔断又是记录,回味隽久悠长。

办公桌与茶桌紧邻而置,闲时泡上一壶清茶,纷纷扰扰仿佛都淡去,工作与生活,原来可以安排得如此融洽。


U型动线让取、洗、切、炒完美分区,下厨烹饪自在随心。橱柜开放格融入拉板,拿取大件更省力。


中岛台衔接美式长餐桌,更显时尚大气。餐边柜中部留空摆放电视,享受美食之时,也能享受影音娱乐。


墨绿墙布花纹繁复柔美,在古典与现代之间优雅起舞,倍增时尚典雅气息,美学韵味一一浮现。

实木大床摆于室内,优雅的线条将美式复古风完美演绎,让卧室布满摩登气息。


石膏线装饰白墙尽显典雅气质,彩绘玻璃镶嵌于蓝绿墙布之中,刚柔并济,演绎传统美式美学。


浅米木床色彩温宁,美式床头曲线优美,以杏灰墙漆映衬,再搭配几幅饰画,渲染出浪漫静谧的休憩环境。


利用黑框玻璃移门实现干湿分离,马赛克造型墙砖配合防水石膏吊顶,诠释业主独特品位。

橘粉色开放格搭配镜柜,下方衬以灰色洗漱台,极富色彩张力,仿佛一副质感浓郁的油画。
空间走向家的转变
是抽象走向具象的艺术
利用色彩、线条、材质
让每一个角落都成生活的载体
成为生命历程的标记
轩怡家装官方联系方式:18529185208(免费预约量房、免费设计方案、免费精准报价)
已有 78770 位业主获取了装修报价
㎡
选择您需要的专享服务

平台信息提交-隐私协议
· 隐私政策
暂无内容