新房装修如何才能好看又好住?这套102㎡案例交出了自己的答卷,面对原始户型空间零碎、动线不畅、收纳不足等痛点,设计师以“现代中古风”为设计主线,通过一系列户型优化,以新的家风貌,酝酿出当下和未来的美好生活。
项目地址:广州星瀚园 户型:4房子2厅2卫 面积:102㎡

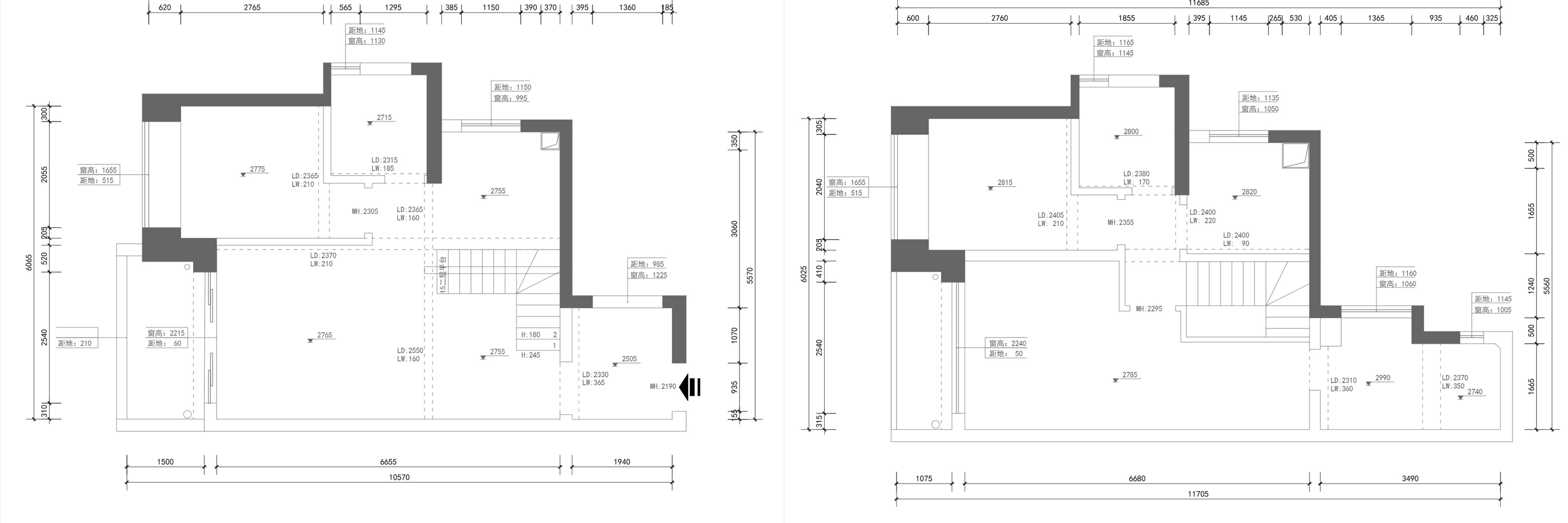
1原始户型分析
①餐厅局促:独树一帜餐厅面积不足,导致家具摆放非常受限,影响日常使用体验;
②动线琐碎 :公区空间被划分得过于零碎,采光和通透感大打折扣;
③主卧格局不佳 :主卧空间转角多,难以划分睡眠、收纳及梳妆等功能区。
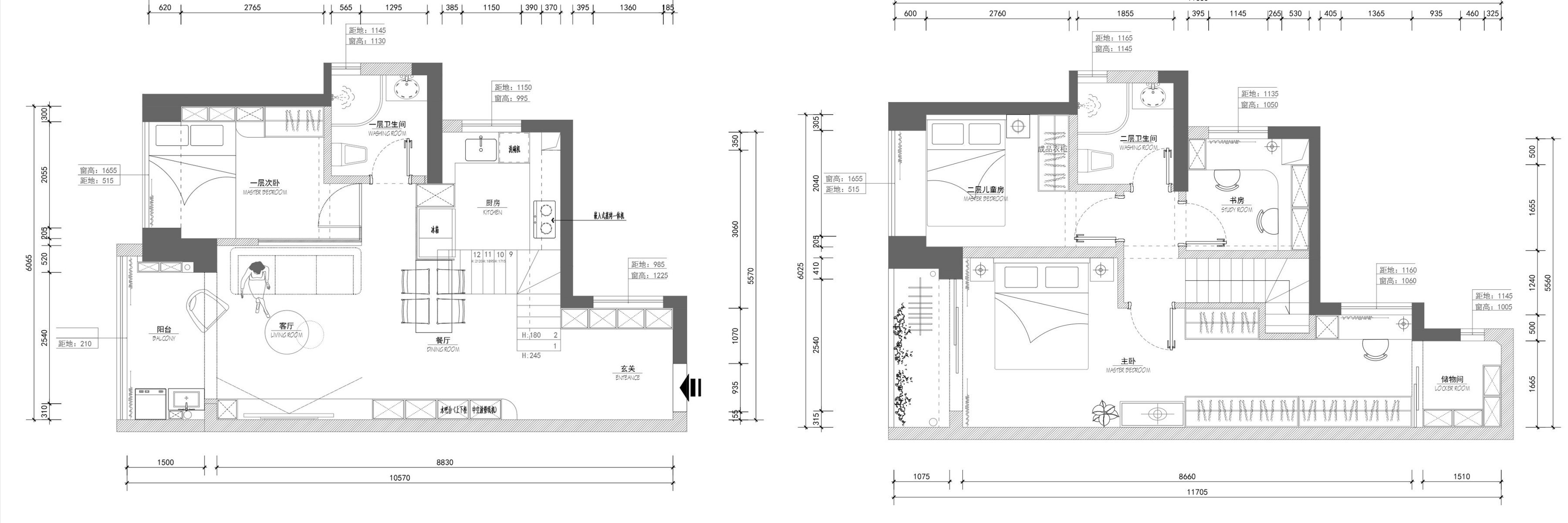
2 设计亮点
①玄关整合:拆除玄关处的隔断墙,填入收纳柜,解决收纳和采光;
②餐厨优化:厨房改为开放式,并让橱柜自然延伸出餐桌,让渡出过道空间;
③客厅阳台合并:阳台改为洗衣+收纳区,并入客厅,提升公区整体性;
④主卧优化 :拆除主卧内的隔断墙,沿过道做衣柜,创造出海量收纳。
1 玄关:一灯一柜一窗的归家仪式

推开门,暖光吊灯与胡桃木玄关柜便映入眼帘,百叶窗滤过的光影与精心摆放的摆件,共同勾勒出静谧的归家仪式感,瞬间让人卸下疲惫。
2 客厅:通透与复古的张力融合

拆除多余隔断后,客餐厅地面通铺木质地板,让纹理自然延伸,塑造出轻盈的流动感。

电视背景墙成为视觉焦点,采用深胡桃木与奶白色进行体块对撞,深浅对比间打破了传统矩形构图,兼具收纳功能与艺术美感。

沙发、边几等家具在颜色和材质上层层递进,强化复古气息,而小木马、抱枕等软装则在细节处营造出随性温馨的生活氛围。

3 餐厨:功能交织的巧妙枢纽

厨房以开放式形态融入公区,U型布局确保了“洗-切-炒”动线流畅效率高。橱柜构成简洁的几何色块,在小空间内铺垫出丰富层次。

改造亮点在于从橱柜延伸出的餐桌,模糊了厨房与餐厅的界限,形成了一个灵活而实用的轻盈餐区,也彻底不要了空间的拥堵感。
4 主卧:功能与浪漫的平衡


主卧延续了整体的中古基调,胡桃木家具与素雅的花纹壁纸或床品相得益彰,浪漫气息悄然流淌。

通过拆除隔断,不仅获得了强大的收纳系统,还成功规划出一个靠窗的独树一帜梳妆区,充分满足了女主人的日常生活需求。

5 次卧:灵活应对未来变化

次卧目前作为多功能房使用,内置折叠沙发床,可随时在客卧与休闲区之间切换,满足家庭不同阶段的需求。
6 书房:能量满满的质感空间

书房虽小,但通过定制胡桃木书桌和书柜,营造出沉稳宁静的办公阅读环境。
7 卫生间:干湿分离与复古细节

卫生间严格遵循干湿分离设计,提升使用舒适度与便捷性。黑色悬浮式洗手台搭配精致的金色拉手,在细节处彰显复古韵味,易于打理的同时也保证了视觉上的轻盈感。
通过合理的空间重组、功能叠加以及材质色彩的运用,有缺憾的原始户型,也能蜕变为复古温暖的理想之家。希望本案例能为准备装修的您,特别是对中古风格有兴趣的广州装修朋友,提供一些参考与灵感。
Q:什么是现代中古风?它适合小户型吗?
A:现代中古风是对20世纪中期现代主义设计的致敬与再创造,它强调简洁的线条、有机形态、自然材质与复古色彩的融合。它偏好功能主义、简约造型和通透空间感,有助于在视觉上扩大面积,非常适合小户型。
Q:打造中古风氛围,关键的设计元素是什么?
A:关键三要素是:材质、色彩和家具。材质上优先胡桃木、柚木等深色木材;色彩上常用橄榄绿、芥末黄、焦糖橙等复古色调作为点缀;家具选择线条流畅、带有些许雕塑感的经典款式。
Q:像案例中一样做开放式厨房,需要注意什么?
A:开放式厨房需重点考虑:
①油烟问题:选择大吸力的油烟机;
②通风条件:确保厨房区域有良好的自然通风或新风系统;
③收纳整洁:开放式意味着厨房的整洁度一目了然,需要更精细的收纳规划。
轩怡家装官方联系方式:18529185208(免费预约量房、免费设计方案、免费精准报价
已有 78770 位业主获取了装修报价
㎡
选择您需要的专享服务

平台信息提交-隐私协议
· 隐私政策
暂无内容