对于许多广州装修的业主来说,无论新房装修还是旧房改造,头疼的莫过于收纳不足导致空间杂乱。本案由轩怡家装打造的100㎡现代简约之家,用全屋定制交出了满分答案,完美诠释功能与颜值并存。
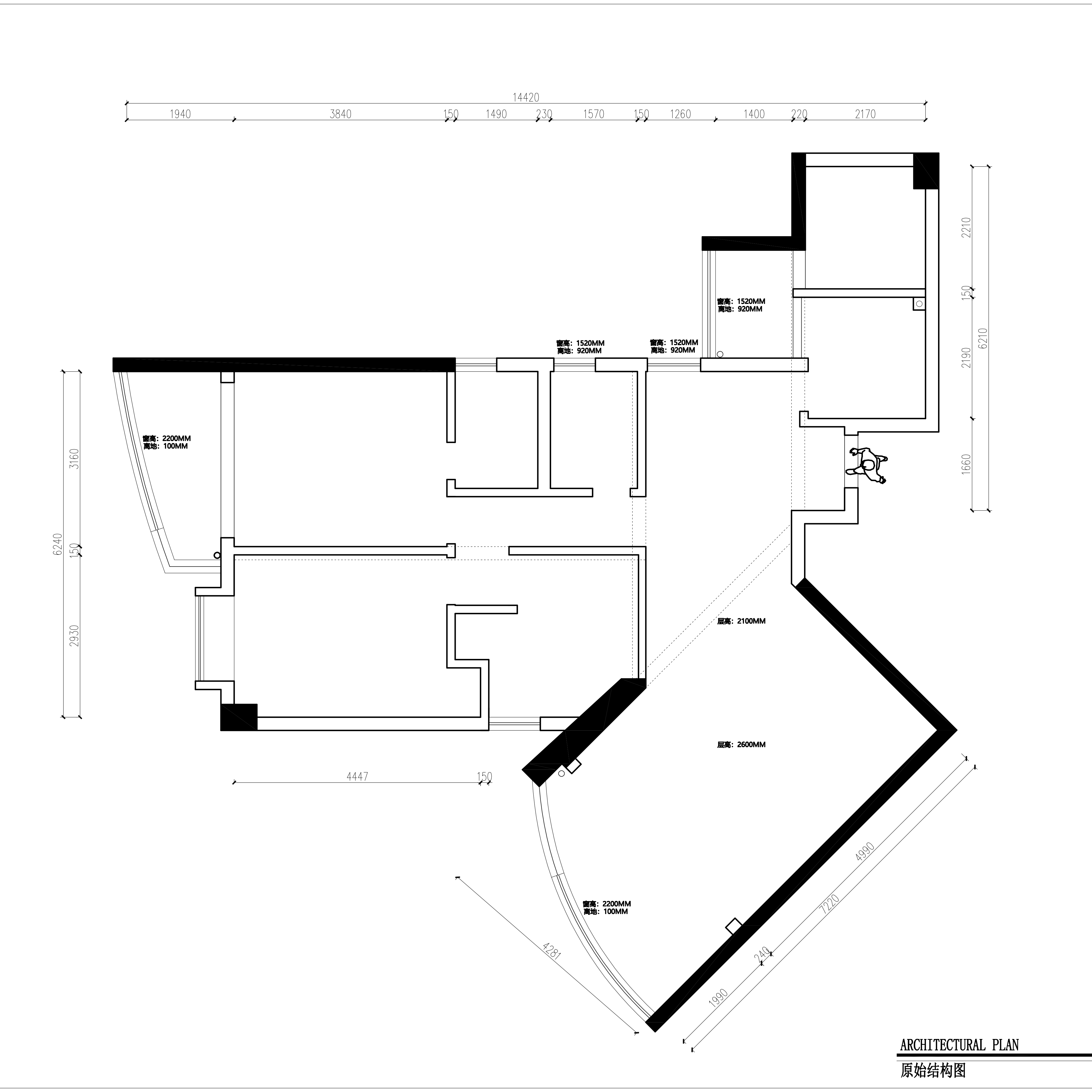
原始结构图
1、原始格局不够方正,从玄关到客厅区域不够通顺;
2、主卧空间不够大,对外阳台使用率低,比较多余。

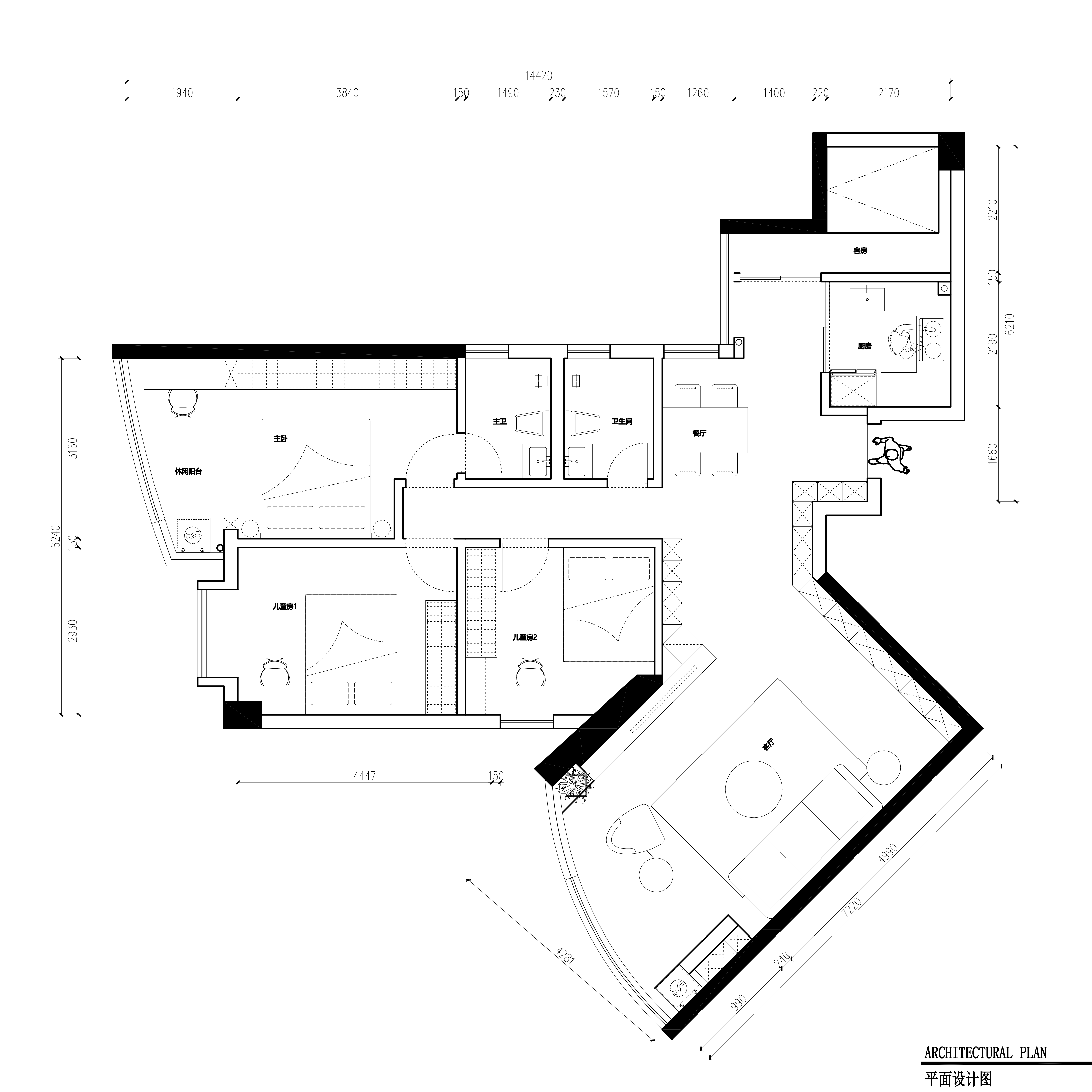
平面布置图
1、从玄关到客厅连作定制柜设计,通过柜体将整个不规则空间串通
2、将主卧阳台与主卧打通,增加主卧室内使用面积

地址:广州市白云区金桂园
户型:3房2厅2卫
面积:100㎡

玄关客厅:定制柜体让公区“隐身收纳”
轩怡家装设计师从入户开始就充分发挥全屋定制优势。顶天立地的玄关柜将鞋物杂物“化于无形”,奠定归家整洁秩序。柜体延伸至客厅时,巧妙采用开放格与封闭柜结合,既满足展示需求又避免压抑感。


阳台与餐厨:空间完美利用的关键
通过打通阳台实现空间拓展,轩怡家装凭借一面定制柜将不规则角落完美利用。

餐厨区域通过定制餐边柜自然过渡,实现饮水、备餐与储物多功能合一。这种一体化设计思维,让房屋装修设计动线更加流畅合理。

卧室:定制家具实现高性价比扩容
在主卧和次卧的规划中,轩怡家装通过整墙到顶定制衣柜提供惊人收纳容量,巧妙借用墙体延伸出定制书桌,满足睡眠、办公等多重需求。这种设计特别适合注重装修预算的业主,能以合理更了很多实现理想效果。



娴熟设计保证终效果
纵观整个案例,轩怡家装通过全屋定制统筹空间格局,在把控装修预算的同时,实现了超预期的居住效果。无论是新房装修还是改造项目,娴熟的房屋装修设计都能让家成为美观与实用兼备的理想空间。

轩怡家装官方联系方式:18529185208(免费预约量房、免费设计方案、免费精准报价
已有 78770 位业主获取了装修报价
㎡
选择您需要的专享服务

平台信息提交-隐私协议
· 隐私政策
暂无内容