本案是160㎡旧房翻新
改造后的住宅
整体以硬朗的硬装
结合软装的简约细腻
融合流行元素
呈现高颜值空间
设计亮点

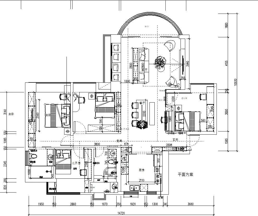
▲平面布置图
①玄关柜融入换鞋卡座,满足日常出门需求;
②利用餐边柜嵌入收纳钢琴,提升客餐厅情调;
③公卫和生活阳台打通,便捷日常家务清洁。

利用玄关过道
打造白色到顶玄关柜
融入卡座、灯带
配色干净利落
满足出入收纳需求


客厅舍去传统茶几
让整体空间更加明朗
营造优雅舒适的家居氛围

半弧形大阳台搭配
凹形天花的简洁
水晶吊灯的贵气
细节处理十分丰满

深棕色皮质沙发
加入几分简欧气质
双层短帘映衬之下
色彩层次鲜明

白色回字型电视柜
地柜上方留空摆放绿植
中部嵌入电视
展现多元储物空间

餐厅选用棕褐原木餐桌椅
满足日常就餐需求
与地板色调保持一致
渲染闲适雅致的就餐氛围

白色通顶嵌入式餐边柜
与玄关柜色系相呼应
同时布局钢琴空间
为三餐之地增添艺术气息


操作台呈“U”型
上下两层橱柜
丰富厨房储物能力

电器选择做嵌入处理
搭配各种置物架
空间使用更优化


双眼皮边吊优化顶面质感
大飘窗的通透
让空间有了光的加持
搭配鱼骨拼木地板
浮现阳光般的温暖质感

肉粉色背景墙搭配胡桃木床
带来温馨自然的色调
床尾整排到顶定制衣柜
白色典雅与收纳功能同时凸显
舒适大气的氛围瞬间拉满

主卫选用多色方砖
复古与现代互相碰撞
淋浴房黑色金属包边
线条简洁,美观实用
与薄荷绿盥洗台相辅相成


大面积天空蓝铺满墙面
搭配普鲁士蓝小床
柔和的色调层层递进
地面通铺的木地板
给蓝色空间注入温暖

飘窗延伸出成地台+收纳柜
日常学习看书累了
还能在地台上小憩一会


床头背景墙刷成橡粉色
带来视觉上的精致与纵深感
让甜美气息布满整个卧室
搭配白色公主床
为孩子打造一方安逸小天地

双开门的整面到顶衣柜
搭配转角开放格
可以放置书籍小物件
满满实用性


淋浴房做成钻石形
缩小占用空间
满足干湿分离的需求
营造干净舒适的卫浴空间

利用打通的生活阳台
设计出家务房
方便日常家务整理
以柔白做底
佐以多种中性色的轻盈感
为家裹上温雅柔和的气息
让生活在精致细腻中悄然生发
轩怡家装官方联系方式:18529185208(免费预约量房、免费设计方案、免费精准报价)
已有 78770 位业主获取了装修报价
㎡
选择您需要的专享服务

平台信息提交-隐私协议
· 隐私政策
暂无内容