美在每一个角落上演,或是沿结构而生的灯带,或是克制规划的收纳,亦或是艺术品陈列的一角。让我们跟随轩怡家装走进这118m²,体验名为意式极简风装修的独特质感。
案例信息
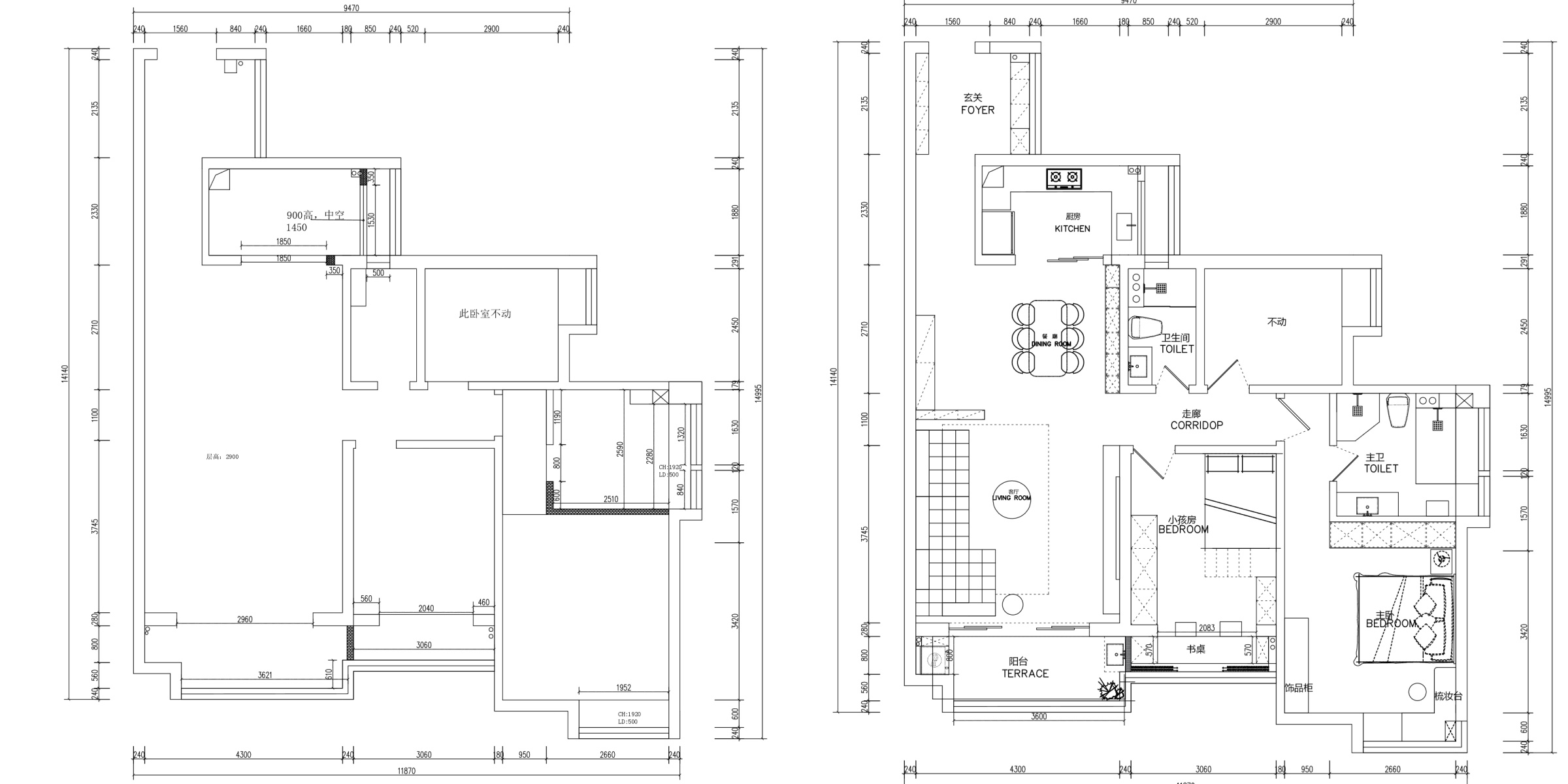
地点:广州 小区:御金沙澜山 户型:118m² 3房2厅 风格:意式极简风

#设计亮点
①格局上未做大的动态调整,根据生活动线进行功能分区,充分发挥户型优势
②根据空间原生结构,满足业主生活需求,将定制收纳克制表达,兼顾美观与实用
③在灰黑浅咖的交织中,利用材质纹路肌理对意式极简做了全新演绎
一 客厅

绕行过隔断,客厅具体的结构得到进一步展现。通铺叠加无主灯,轩怡家装以不厚重的层次变化,构建空间整体感,将竖厅魅力充分发挥。

悬浮电视柜将视觉重心上抬,深色电柜又将视线下压,上与下,淡与浓、轻与重,明与暗,多种维度对比带来张力,塑造出生活的优雅形态。

模块化沙发满足多种使用需求,简约线条与纯净颜色,与整体风格相应的同时,又承接居住者的身体情绪。轩怡家装利用饰画与灯光呼应,组合出远方的山海意象,是精神的向往。
二 餐厅

意式极简风格在餐厅得到进一步表达,石纹纹理与光影变化交织共融,成为空间的层次。轩怡家装赋予餐边柜多变的结构,在提升居住体验之余,亦丰富了场景。

随着视角进一步推近,石纹变换来至眼前。无论是黑白的克制,还是多色的斑斓,纹路在光影的起承转合中生动迷人。
三 厨房

U型布局是厨房的黄金表达。轩怡家装均衡动线、秩序、比例,让烹饪回归舒适自在。吊柜灯带、杂物上墙,体贴被注入的无微不至的细节当中。
四 卫生间

针对业主生活需求,轩怡家装做出细致回应。淋浴房与浴缸的兼备,智能马桶与加长台盆的舒适,生活在设计的精细中得到了圆满。
5 主卧

主卧利用浅咖与深棕的暖质,带来丝丝暖意,演绎出一种回归上的安宁。通顶衣柜放入开放格,上下位置呼应,打破柜子单调,以克制笔法书写层次。

儿童房通过上下床释放了更多地面空间,也为孩子带来纵向探索的趣味。依托窗户打造的学习区,光线充足,格局有序,令生活呈现出条理。
业主评价:“我们非常满意轩怡家装这次的装修效果,整个团队从设计到施工都非常负责,广佛装修的业主们可以考虑。装之前担心意式极简风会显得冰冷,但设计师通过材质和灯光完美地平衡了质感和家的温度。特别是整个家的定制柜,既好看又实用,现在每天回家都感觉是一种享受。”
已有 78770 位业主获取了装修报价
㎡
选择您需要的专享服务

平台信息提交-隐私协议
· 隐私政策
暂无内容