家有萌宠用如何设计?本案127㎡的三房两厅两卫,轩怡家装以胡桃木为摩登色彩线索,通过材质搭配、动线规划与功能考量,量身打造耐看、耐住、耐生活的的居住空间。
·案例信息
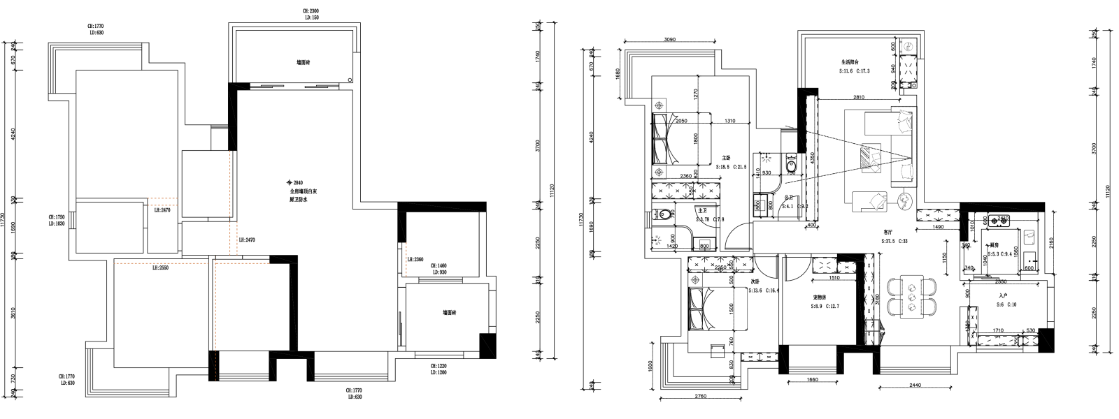
地点:中山 小区:星际豪庭 户型:127m² 6房2厅 风格:现代简约风
·设计亮点
1、人宠双动线考量,贯穿“友好型设计,让空间自然适配真实生活
2、全屋定制让空间保持清爽克制,保证了空间的整洁、通透与高等感
3、多维复合空间规划,将单一空间的价值比较大化,实现“小家大容量”

一 入户
入户恰到好处的窗体,构成了天然的取景框,倚窗而设的悬挑式柜体,既能藏匿所有外出杂物,保持视觉***整洁,开放格又可作为艺术品的展示台,高等感自此奠定。

二 厨房
玄关对面,自然过渡至厨房区域。
厨房采用U型操作动线,洗、切、炒路径清晰,很大程度减少无效移动。利落简约的配色富有层次,考虑空间的秩序感与材质的耐久度,支撑长期高频的家庭使用。

三 餐厅
穿过门厅,视线自然落在餐厅区域。
一张现代造型的岩板餐桌,搭配着“绿野花”图案的餐布,与绿色窗帘遥相呼应,仿佛将春日园景永恒定格于室内。
定制餐边柜将冰箱完美嵌入,柜体线条横平竖直,展现出严谨的秩序之美。

四 客厅
整体硬装线条把控得极为克制,顶面、墙面与地面关系清晰,没有多余造型,让空间保持现代风应有的理性骨架。弧形茶几与柔软皮质沙发的引入,中和了直线的冷峻。

沙发表层皮革光泽高等,触感柔软,铺上同色系羊绒盖毯与米白抱枕,更添慵懒暖意。

一侧的浅绿色绒面单人椅,搭配明黄色绒毛抱枕,宛如空间中一个活泼的音符,成为冬日阳光下惬意的角落。
电视墙以黑色哑光柜体为基底,嵌入大尺寸电视,左侧引入胡桃木色开放柜,右侧则搭配通透的黑色玻璃柜门,材质碰撞间,层次感立现。

将阳**全纳入客厅。此举不仅极大延展了视觉尺度,使空间通透明亮倍增,更创造出一个多功能复合区域,“观景、闲坐、家政、宠物区”四位一体,实现了人宠共乐、互不干扰的理想状态。

五 主卧
主卧延续了公区的静谧与高等。米色软包床头,弱化空间硬度,提升休憩舒适度。一侧顶天立地的收纳柜,***简约,将收纳化为无形,实现空间满分利用。

六 卫生间
卫生间以统一的浅灰色系瓷砖铺陈,从墙面延伸至地面,形成浑然一体的视觉扩张感,宁静而富有质感。
沐浴区五边形玻璃隔断,不仅比传统方形或弧形更具设计感,也能更灵活地适应空间,符合现代极简生活的实用诉求。

轩怡家装官方联系方式:18529185208(免费预约量房、免费设计方案、免费精准报价)
已有 78770 位业主获取了装修报价
㎡
选择您需要的专享服务

平台信息提交-隐私协议
· 隐私政策
暂无内容