新中式的雅致
在于传统意境与现代舒适相融
藏东方之内敛,合当代之实用
在本期的158㎡新中式美家中
设计师以“空间为纸,生活为墨”
拆改优化空间、定制全能收纳、打磨刻画细节
让传统雅韵融入起居、会客、休憩
尽显东方生活智慧
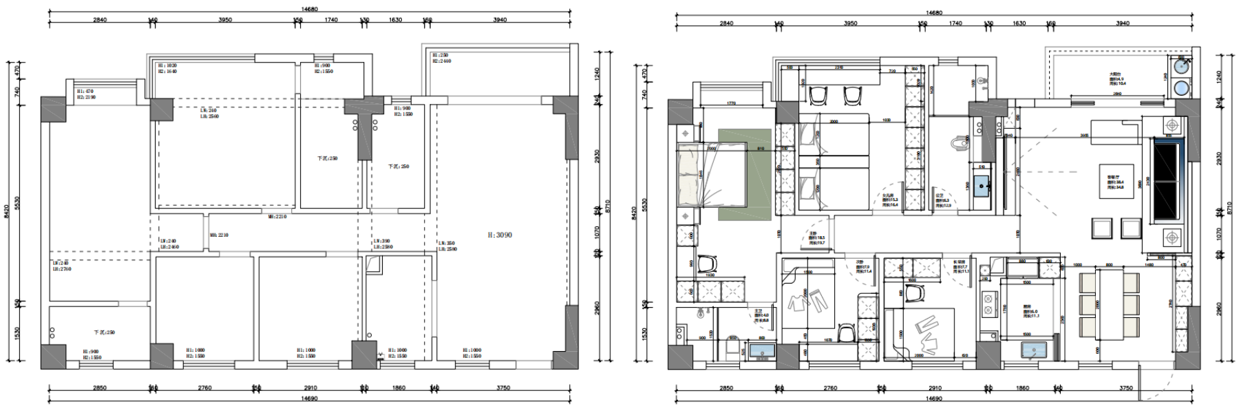
项目信息:
小区|海运轩 户型|平层 居室|4室2厅2卫 面积|132㎡ 风格|新中式
设计亮点:
✅ 公共区打造连贯洄游动线,提升空间通透感与使用效率。
✅ 取消一卫并入客厅做背景墙,丰富客厅会客、休闲、轻办公功能
✅ 全屋多区域增设定制收纳柜,效率高利用边角空间解决收纳难题
✅ 调整卧室布局 + 优化卫浴分区,提升居住私密性与日常舒适度
PART.01
入户/玄关
入门即见东方雅韵。深色屏风隔断,巧妙隔开玄关与客厅;中间圆窗内嵌的一抹绿意,藏 “财源广进” 之寓意;

透过镂空格栅,客厅若隐若现,虚实相生,既保私密,又延续空间通透;
这是东方美学中的“藏与露”,也是归家眼的诗意序章。

入户右侧顶天立地玄关柜,三种收纳方式一步到位:左侧玻璃门柜,通透显质感,陈列藏品清晰可见;右侧封闭柜,藏起不常用物件,防尘又整洁;中间开放格设计,随手放置日常用品,取用超方便。
PART.02
客厅
一踏入客厅,目光便被流畅的开阔感所牵引,这源于拆除原客卫墙体的巧思。百叶窗引光搭配"歡喜"字画点缀,空间简洁明亮又不失生活温度;舍弃厚重帘布,改用轻纱材质,让光线柔和漫入,空间更显通透轻盈。

扩容后的“留白”被精心设计为多功能电视背景墙:左侧玻璃展示柜用于陈列藏品,右侧储物高柜满足收纳需求。

镂空实木家具,搭配素雅布艺与木质摆件,打造多功能会客区——待客、品茶、阅读甚至轻办公,都能轻松切换,既实用又不失新中式的静雅气质;

会客区背景墙以实木墙面、木格栅与大理石拼接,材质对比含蓄而富有层次。
PART.03
餐厨
餐厨一体化设计,动线连贯顺畅,既承载家庭用餐的火气,又延续新中式的内敛温润,整体氛围沉稳而亲切;

圆形餐桌呼应“团圆”之意,搭配细脚木质餐椅,轻盈不失庄重;一旁定制的实木柜,开放格与封闭储物区兼备,既能陈列茶具、器点缀氛围,又能收纳餐厨杂物,让用餐区始终整洁有序。

厨房采用L形布局,嵌入式厨电巧妙藏入白色柜体中,视觉干净利落,细节处尽显高等感。
PART.04
主卧
主卧以 “静谧舒适” 为重要,布局远离公共动线,确保休憩的私密性;
床尾整墙嵌入式无把手衣柜,衣物收纳毫无压力,与墙面浑然一体更显视觉整洁;

床头墨灰色软包低调有质感,浅色系墙面搭配窗边绿植,尽显静谧质感;床侧桌柜一体化设计,还能作为小型办公或阅读角,日常处理事务、睡前阅读都便捷。

PART.05
次卧
房间以柔和色调铺陈,实木家具搭配简约软装,延续新中式的内敛雅致;
沿墙定制到顶衣柜,实现垂直空间100%利用,收纳能力堪比衣帽间;

PART.06
女儿房
两张床并排摆放,中间以收纳柜巧妙分隔,既满足姐妹共居需求,又额外增加储物空间,实用又省心;兔子造型的软包床头,圆润轮廓自带童真趣味,守护孩子的烂漫想象。

窗前巧妙设置L形转角书桌,比较大化引入自然光线,营造出沉浸式学习环境;床尾定制到顶衣柜,左侧衔接半开放式收纳格,一体化设计规整空间,轻松收纳衣物、玩具与学习用品。

轩怡家装官方联系方式:18529185208(免费预约量房、免费设计方案、免费精准报价)
已有 78770 位业主获取了装修报价
㎡
选择您需要的专享服务

平台信息提交-隐私协议
· 隐私政策
暂无内容