现代原木风追求的是宁静温暖的生活意境
当温润木色铺陈出空间底色,简约线条勾勒通透格局
家便回归至比较舒适的状态——简单、透气,藏着日常的美好
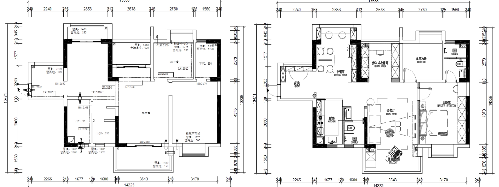
在本套105㎡的居所中
轩怡家装从真实居住需求出发,以“五大生活方式”为蓝本
通过个性化全案整装,将300项人性化设计落于细微处
让智能科技与灵活收纳悄然融入空间肌理
终造就一个可自由舒展、简洁通透的都市理想居所

项目信息:
设计师|杨灿 监理|肖猛 小区|水木年华
户型|2房2厅2卫 面积|105㎡ 风格|现代原木
设计亮点:
✅通过全屋小米智能系统,实现归家、观影、睡眠等多种情景模式
✅衣帽间与衣柜采用折叠门设计,灵活DIY布局,实现收纳自由
✅拆除冗余墙体,优化空间动线,让公共区域更通透开放
✅ 现代简约融入原木肌理,打造自然温暖的居家空间
PART.01
入户/玄关
推开沉稳的黑色入户门,毛绒圣诞树挂件轻轻摇曳,家的温馨感扑面而来。
墙上悬挂的全身镜,既方便出门前整理仪容,又在视觉上扩容空间,让入户区更显通透舒展;

定制玄关柜沿墙面与窗户呈L型布局,比较大化利用角落空间。柜体采用无把手设计,线条干净利落,底部留空设计尤为贴心,常穿的鞋子可自然归位,入户处始终清爽不杂乱。
中部开放格兼具收纳与展示功能,既可随手放置钥匙、包包,也能用香薰摆件装点生活气息。柜体嵌设的玻璃柜,巧妙打破整柜的沉闷感,为心爱藏品打造精致展示窗口,功能与美学自然相融,入户起始印象便是整洁而温馨。

PART.02
餐厅
餐厅以原木与米白色为主调,落地窗引入充沛自然光线,让整个用餐区明亮通透。

沿墙定制的餐边柜采用白+原木撞色设计,无把手柜门线条利落,左侧嵌入式冰箱与柜体齐平,视觉上浑然一体;

柜体的开放格不仅是展示区,更设置了轨道式插座,咖啡机、面包机等小家电即插即用,电线收纳有序,彻底告别杂乱;抽屉 + 封闭式储物区可妥善收纳餐具杂物,让空间始终保持着清爽的秩序感;

胡桃木餐桌散发着温润的自然质感,一盆蝴蝶兰在桌面上静静绽放,用一抹鲜活绿意点亮整个用餐空间;这缕自然生机让日常用餐更添诗意,当家人围坐在一起,温馨的火气息便弥漫开来。
PART.03
厨房
厨房采用经典L形布局,洗切炒动线一气呵成,比较大化提升烹饪效率,简约设计也让空间更显整洁开阔。

吊柜与地柜统一选用米白色哑光面板,无拉手设计延续了整体的简约调性,视觉干净通透;厨电全嵌入式设计,与柜体无缝相融,既节省台面空间,又提升厨房的整体感,打造清爽效率高的烹饪环境。

PART.04
客厅
客厅以“无茶几”设计释放出更多活动空间,白色线条几何地毯轻盈铺展,为空间铺陈出自在的休闲基调。

黑色皮质沙发沉稳舒适,背景墙上错落有致的迪士尼装饰画,是业主个性的生动表达;

视线延伸至阳台,定制玻璃收纳柜内嵌灯带,将心爱的手办与藏品一一陈列,成为空间中灵动的展示角落;一旁的封闭式收纳柜兼顾日常储物,让阳台整洁有序;白色纱帘柔化光线,为空间添上一层温柔质感;

电视背景墙以弧形悬浮造型呈现,柔化空间线条的同时,让视觉层次更显丰富;电视机完美嵌入其中,下方白色地柜既可收纳日常杂物,也能摆放音响、摆件等装点空间,让实用与美学恰到好处地相融;墙面灯带晕染出柔和光晕,夜晚窝在沙发观影,便是惬意的居家时光。

PART.05
衣帽间
穿过平拱门,便是步入式衣帽间,整体布局简约整洁,实用收纳与精致展示兼具,通透感十足。顶部简约圆形吸顶灯搭配窗边自然采光,柔光满溢、明亮通透,让这个收纳空间更具轻盈的呼吸感。

白色主柜体搭配窗户一侧的棕色柜体,经典撞色勾勒出层次质感,中间开放格可以摆放香水、包包等心爱之物,随手可取又能装饰空间。折叠门铝柜可随心DIY布局,让每一寸空间都得到充分利用,真正实现收纳自由。

PART.06
主卧
主卧静谧而温柔,在简约克制中流露出生活的温度感。黑色软包床头搭配白色碎花床品,彩色毛绒抱枕点缀其间,刚柔并济中透出生活的柔软;

沿墙定制通顶衣柜,收纳能力堪比衣帽间,折叠门设计让内部布局可根据需求自由调整,衣物、被褥各归其位;
床头一侧的棕色实木梳妆台采用桌柜一体设计,既能满足日常梳妆,也可作为临时办公区;天花板灯槽内暗藏线条灯,柔和光晕沿顶面漫开,为空间增添层次与设计感;电动窗帘自动开合,晨起时被自然光温柔唤醒,入夜后一键拉合,守护一室安眠。
PART.07
次卧
次卧作为备用空间,打破单一居住功能,目前打造为专属音乐器材室,成为屋主安放兴趣的专属小天地。空间延续整体现代原木风,简约通透,可根据日后生活需求灵活改造,儿童房、客房、书房皆可适配,让业主拥有更多生活可能性。

PART.08
卫生间
卫生间采用人性化干湿分离设计,洗手台外置,形成开放干区。推门而入便是沐浴区与马桶区,功能分区清晰,日常使用更便捷;

洗手台柜体做悬浮设计,视觉轻盈且不留卫生死角,更方便扫地机器人自由穿梭清洁;台面上方镜柜收纳充足,洗漱用品尽数藏纳,让台面始终保持整洁;一束玫瑰花悄然点缀,为空间注入几分温柔情致。
轩怡家装官方联系方式:18529185208(免费预约量房、免费设计方案、免费精准报价)
已有 78770 位业主获取了装修报价
㎡
选择您需要的专享服务

平台信息提交-隐私协议
· 隐私政策
暂无内容