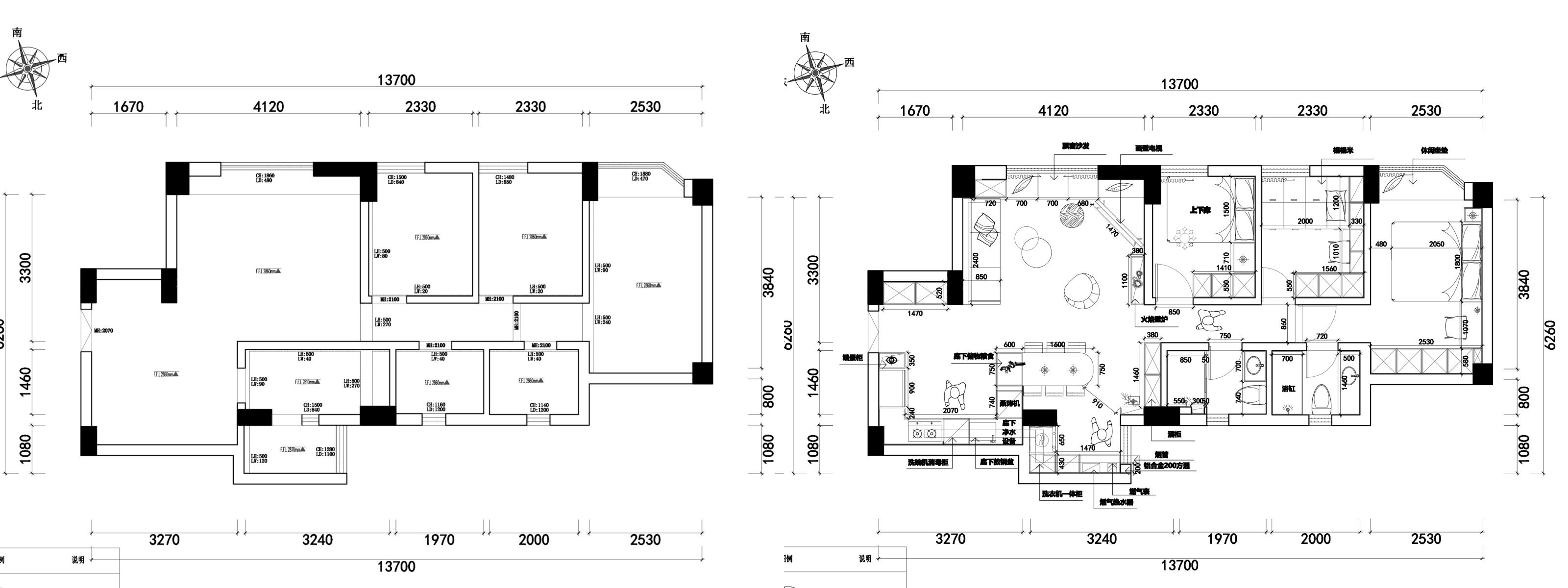
本期给大家分享一套位于广州丽江花园的88㎡旧房翻新案例。面对公区不合理、厨房狭小及收纳不足的痛点,轩怡家装以轻法式风为基调,通过打造开放式格局,重塑旧房风貌。

①公区不规整,分区动线混乱;
②厨房狭小,操作性不足;
③收纳不足,难以满足业主需求。
①厨房做成开放式,实现LDK一体化,减少转角隔断;
②依据全屋结构,合理安排定制柜,游刃有余承担收纳;
③厨房开放式格局融入吧台,增加操作台面与餐桌形成有机连接。

原始户型中,客厅与餐厅错位布局,视野受限。改造后实现LDK一体化,自然光线得以贯穿整个公共区域,原本狭小的客厅瞬间变得开阔通透。

墙面采用奶白底色,搭配精细的雕花石膏线,勾勒出法式优雅轮廓。黑色沙发沉稳大气,局部点缀的红色成为视觉焦点,为素雅环境注入热情活力。
沙发背景墙的大理石岩板从天花板垂直延伸至地面,与茶几纹路形成呼应,提点搭配气质。

摒弃传统电视背景墙,改用壁炉搭配石膏线,结合水晶吊灯,碰撞出高雅温馨的家庭公共区。

原厨房采光较差,且与客餐厅分离。开放式处理实现格局通透,也强化了功能区的社交属性,构绘出家的新风貌。

黑色地柜与白色吊柜形成视觉对比,大理石纹路演绎出高贵雅致的华美,将法式奢美感融入生活日常。
原餐厅位置较为孤立,改造后以吧台作为柔性隔断,保留空间整体性。餐桌台延伸而出,与背景横竖碰撞,带来强烈视觉冲击。串珠吊灯散发柔和光影,让三餐充满仪式感。

沿墙定制的法式餐边柜兼具展示与收纳功能,将美学与实用结合得恰到好处。

奶白色墙面+地面木纹营造温暖柔和的氛围。悬浮桌从衣柜自然延伸,既可办公阅读,又能摆放小物,实现"一桌三用"。

背景墙以石膏线框出优雅比例,小灯从天花板垂落,洒下温暖光晕。衣柜采用顶天立地设计,奶白色调搭配金属拉手,还空间以整洁。

次卧延续法式基调,床尾创意弧线灯带打破空间生硬感,形成天幕般温润柔光,弥漫出生活的柔情蜜意。

儿童房动物形状的软包床头两只俏皮的"小耳朵",瞬间唤醒童真想象,串联起年岁与家的隐秘关联。
轩怡家装通过户型优化设计,将这套丽江花园旧房重塑为充满法式情调的理想家。无论是开放式餐厨带来的通透感,还是全屋定制柜实现的海量收纳,都印证了品质装修对生活的提升。
轩怡家装官方联系方式:18529185208(免费预约量房、免费设计方案、免费精准报价)
已有 78770 位业主获取了装修报价
㎡
选择您需要的专享服务

平台信息提交-隐私协议
· 隐私政策
暂无内容