繁华喧嚣的都市中,我们渴望拥有一处宁静而舒适的居所,远离浮躁,回归真我。轩怡家装以106㎡现代简约住宅为设计载体,用光和影、形与构,为您打造一个既开阔又沉稳的温馨之家。

设计亮点
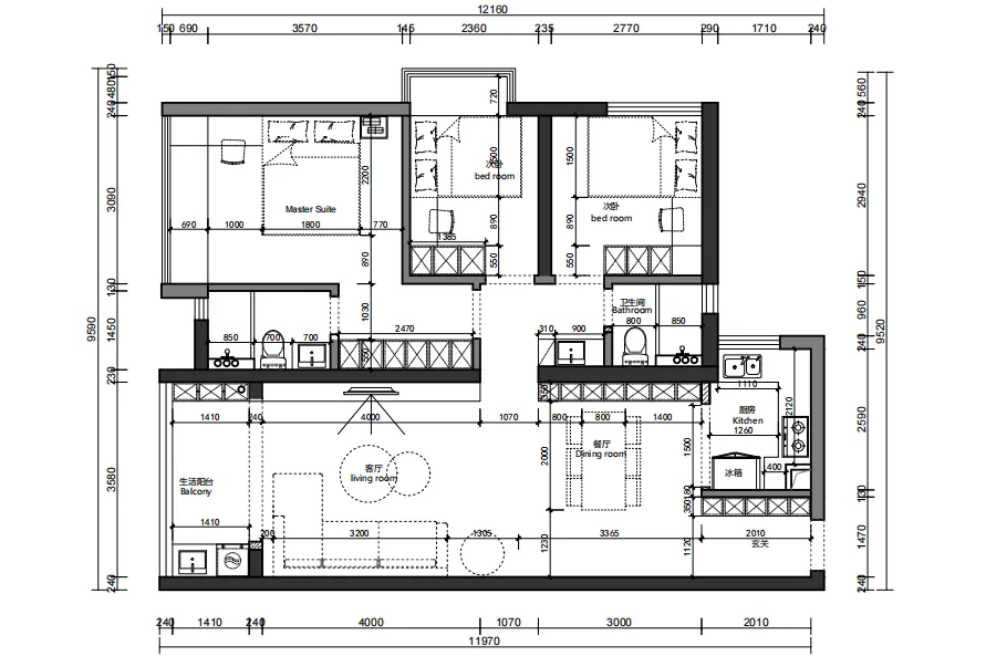
阳台纳入客厅,打开立面引入天光;石纹瓷砖通铺,纹理连枝,气势磅礴;公卫洗漱台外置,功能区分离,使用方便。

步入玄关,首先映入眼帘的是定制柜的巧妙设计。它将梁位融入其中,墙面满铺,不仅增加了收纳空间,还使得空间更加整洁有序。中底部留空的设计,既方便放置常用物品,又避免了压抑感。暖系面板上点缀着素黑元素,打破了单调性,为玄关增添了一抹时尚气息。

穿过玄关,来到宽敞明亮的客厅。石纹瓷砖从玄关处开始铺设,一路延伸至客厅,纹路蔓生,仿佛将整个空间串联成一个整体。顶面众灯璀璨,反灯槽圈合以光绘形,营造出温馨舒适的氛围。墙板与岩板拼接的电视背景墙,简洁而又不失设计感,白底灰纹的泼墨山水图案,更添气韵生动。

组合式沙发采用双色拼配,半围合布局既兼顾了社交需求,又满足了日常休闲的需要。中部引入的小茶几,取代了传统样式,使得空间更显开阔。

在这样的环境中,无论是与亲朋好友欢聚一堂,还是独自享受闲暇时光,都能感受到生活的美好。

餐厅与客厅相邻,空间过渡自然流畅。米棕咖的色调逐级过渡,营造出温馨而富有生活气息的氛围。六人桌椅整齐摆放,色调搭配和谐,让人食欲大增。

餐边柜采用封闭+开放的组合布局,既满足了收纳需求,又方便随手取用物品。

厨房的设计同样注重实用性与美观性的结合。U型台面让空间使用更加合理化,下厨动线顺畅无阻。地面沿袭灰色石纹砖,与整体风格保持一致。双色拼配橱柜上下呼应,提供了充足的收纳空间。洗菜区置于窗前,光线充足,视野开阔,让烹饪成为一种享受。

主卧的设计注重舒适与实用。利用走廊定制满墙衣柜,不仅增加了收纳空间,还使得空间更加整洁有序。顶面补加的简约主灯,提供了明亮的光线,方便日常起居。

近门处柜体做开放格设计,方便随手安置物品。突兀的横梁经过柜体消解,淡化了突兀感,使得空间更加和谐统一。金色拉手点缀其间,打破了单调性,为空间增添了一抹精致感。

儿童房则以浪漫甜美的氛围为主打。浅粉彩墙搭配欧式皇冠床,为小女孩打造了一个梦幻般的公主房。飘窗以短帘包裹,清新淡雅的蓝色为空间增添了一抹甜美气息。星星主灯更是为空间增添了一抹童趣。粉白相间的到顶衣柜简约雅致,既满足了收纳需求,又保持了空间的整洁美观。墙侧延伸出的书桌则开辟了一个学习区,为小屋主提供了一个安静舒适的学习环境。
总的来说,轩怡家装打造的这处106㎡现代简约住宅,既注重实用性又兼顾美观性,以光影和形构为设计语言,营造出开阔而沉稳的家居氛围。无论是整体布局还是细节处理,都充分考虑到居住者的生活需求和审美需求,让人们在忙碌的生活中找到一处宁静的港湾。这样的住宅设计,即使二十年过去,依然不会过时。
轩怡家装官方联系方式:18529185208(免费预约量房、免费设计方案、免费精准报价
已有 78770 位业主获取了装修报价
㎡
选择您需要的专享服务

平台信息提交-隐私协议
· 隐私政策
暂无内容