如何将老旧的住宅改造为符合现代审美的居所是许多业主的关切。本期分享的这套由轩怡家装在佛山南海区完成的170㎡旧房改造案例,通过纯粹的黑白极简风设计,结合大量嵌入式与悬浮收纳,成功将一个沉闷老宅重塑为理性、通透且充满温度的高等住所。本案为正在寻找极简风设计和旧房翻新方案的广州装修与广佛装修业主,提供了出色的灵感范本。
项目信息
地点:佛山市
小区:南海白天鹅
户型:170㎡ 3房2厅2卫
风格:现代极简风格


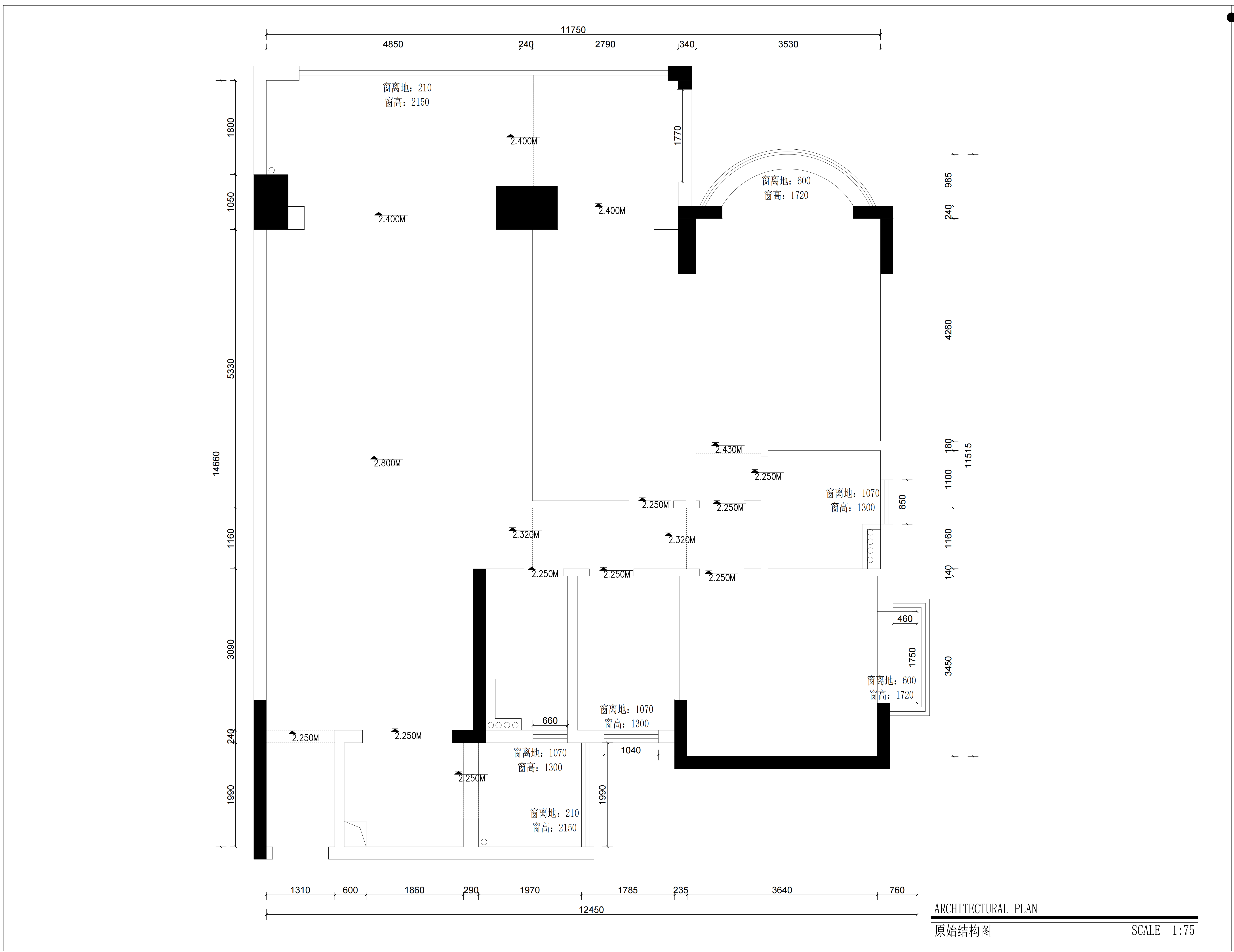
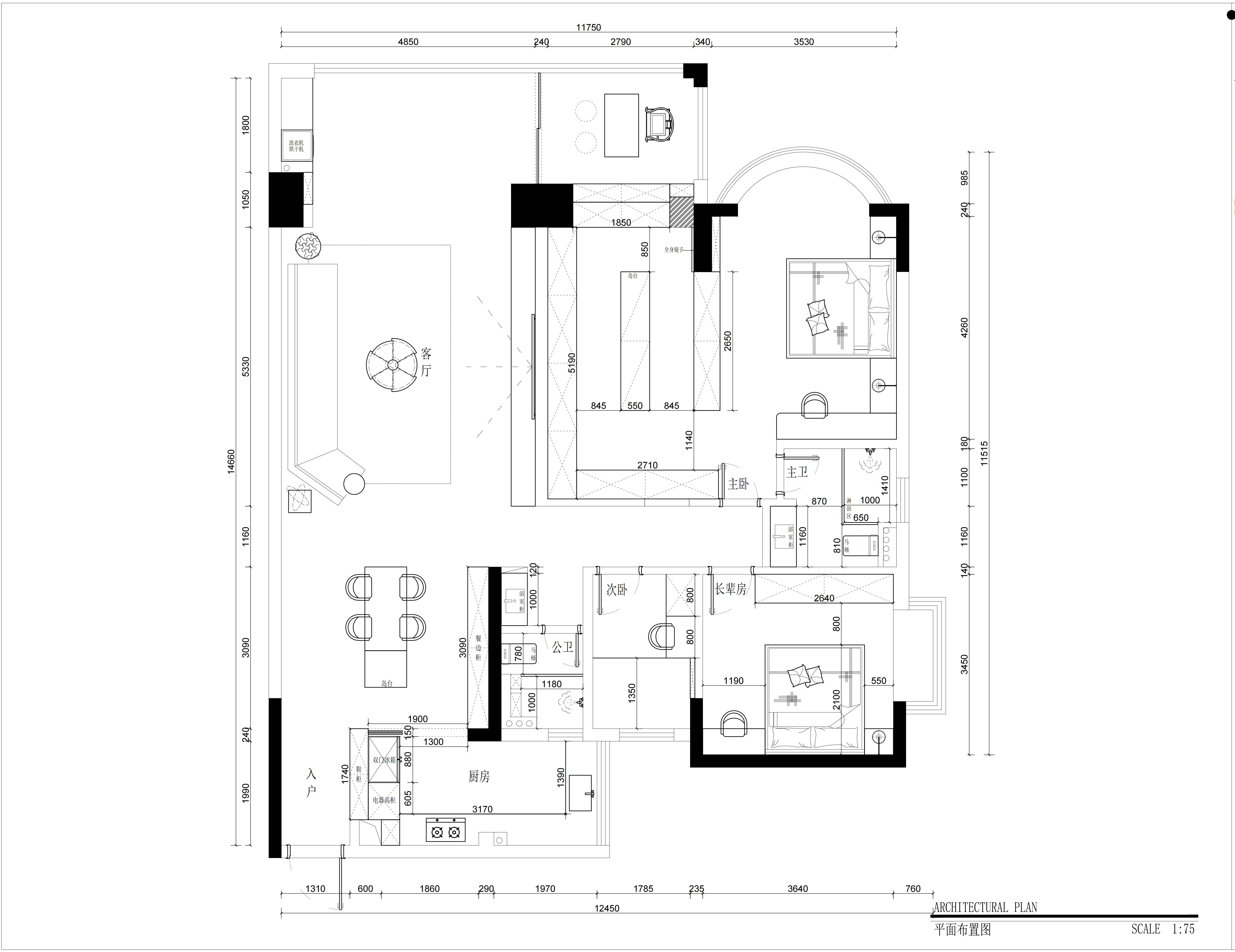
一、 格局与光影:开放式布局,引光入室破局老旧
老房子常见的通不舒适是格局闭塞、采光不足。轩怡家装设计师打通客厅与阳台,打造开放式的公共区域,让自然光通过超大落地窗充分涌入室内。

同时,采用无主灯设计,以线性灯带引导视觉,不仅消掉了阴暗角落,更在视觉上拉伸了空间纵深感。

二、 收纳与美学:嵌入式定制,实现视觉细致留白
极简风的重点是“少即是多”,但这离不开强大的收纳支撑。本案中,轩怡家装将全屋定制的理念发挥到细致。
电视背景墙、餐边柜、家政柜均采用嵌入式设计,与墙面浑然一体。主卧的悬浮柜和衣帽间的系统规划,都将储物空间“隐匿化”。

三、 色彩与温度:黑白主调中,用细节注入生活暖意
纯粹的黑白配色容易显得冷峻,但设计师通过材质和灯光巧妙地注入了温度。柔光砖的地面质感、沙发深色的聚焦、以及茶几的几何拼接,在理性中构筑了丰富的层次。

更重要的是,在全屋线性灯带和局部暖光的柔和映照下,黑白的冷感被有用中和,营造出一种冷静克制又不失生活气息的独特氛围,完美诠释了何为高等且宜居的现代极简之家。

四、 业主真实入住反馈
“房子住了十几年,原来又暗又乱。终决定交给轩怡家装做改造,效果真的太惊艳了。现在家里又亮又整洁,所有的杂物都藏进了定制柜里,打扫起来也特别方便。这种黑白极简的风格,不仅耐看,而且让人的心情都跟着变得平静、舒畅。邻居来参观都说,完全看不出是同一套老房子,这笔装修预算花得非常值!”
轩怡家装官方联系方式:18529185208(免费预约量房、免费设计方案、免费精准报价)
已有 78770 位业主获取了装修报价
㎡
选择您需要的专享服务

平台信息提交-隐私协议
· 隐私政策
暂无内容