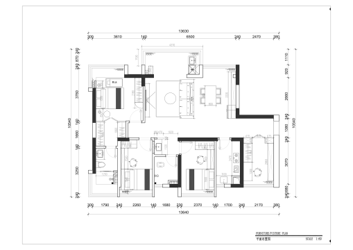
轻法式风格因其优雅浪漫而备受年轻业主喜爱。本案是一套 120㎡轻法式三居室,设计师以法式浪漫为题,采用客餐一体化布局,实现空间通透、功能加倍、颜值升级。
#案例信息
地点:佛山 小区:保利珑门 户型:120㎡ 三房两厅 风格:轻法式风格


#设计亮点
客餐厅一体化布局:形成横向通透的格局,视觉延伸感极强。
阳台纳入客厅:阳台与客厅打通,不仅扩展休闲区,还增加收纳区。
全屋定制:依据结构量身打造,储物能力增强。
一 客厅
浅木色鱼骨拼地板自玄关延展至阳台,纹理的节奏为空间定下柔和基调。米白色墙面大面积留白,减少视觉噪点,为光影留足余地。

沙发与墙面同属浅米色系,视觉连贯而轻盈;浅灰纹理地毯与木质茶几相互呼应,层次在克制中展开。

电视背景墙以法式石膏线勾勒,搭配山丘折射灯带,呈现出光影的灵动感与轻盈感。圆弧拱门消解了空间棱角,视线过渡更为柔美。

二 阳台
阳台定制柜体与嵌入家政设备,将功能融入整体,功能与美观得以平衡。吊灯、绿植与石膏线条交织,完成了法式浪漫与日常实用的平衡。

三 餐厅
餐客一体,动线自然连贯,视线在统一的序列中展开,开阔大气。椭圆形大理石桌面,犹如玉石般温润,石材的冷静与木质的温度对比。
米白色餐边柜搭配金属把手延续法式优雅,中部镂空与餐桌大理石同色呼应,细节统一而不突兀。

四 厨房
L 型布局提升使用效率,上下柜以浅牛油果绿为空间注入清新氛围,纵横线条强化了秩序感。垂直与水平的线条,暗合空间秩序感,细节间散发出一种含蓄精致。

五 主卧
浅色墙面与同色系床体,营造柔和氛围。浅绿色衣柜搭配金色把手,法式气质在细节处渗透,低调而优雅。

六 次卧
制米白柜体与榻榻米一体化设计,增加储物功能,提升空间利用率。柜体搭配金色把手,呼应整体法式调性。

七 次卧
延续米白柜体,在局部加入粉色,柔和中带有一丝灵动。局部粉色适度点缀,使空间更具个性和温度。

如果你正在寻找 广佛装修公司或想了解法式装修,轩怡家装有丰富的落地案例和成熟的设计团队,能为你定制更符合生活方式的装修方案。
轩怡家装官方联系方式:18529185208(免费预约量房、免费设计方案、免费精准报价)
已有 78770 位业主获取了装修报价
㎡
选择您需要的专享服务

平台信息提交-隐私协议
· 隐私政策
暂无内容