
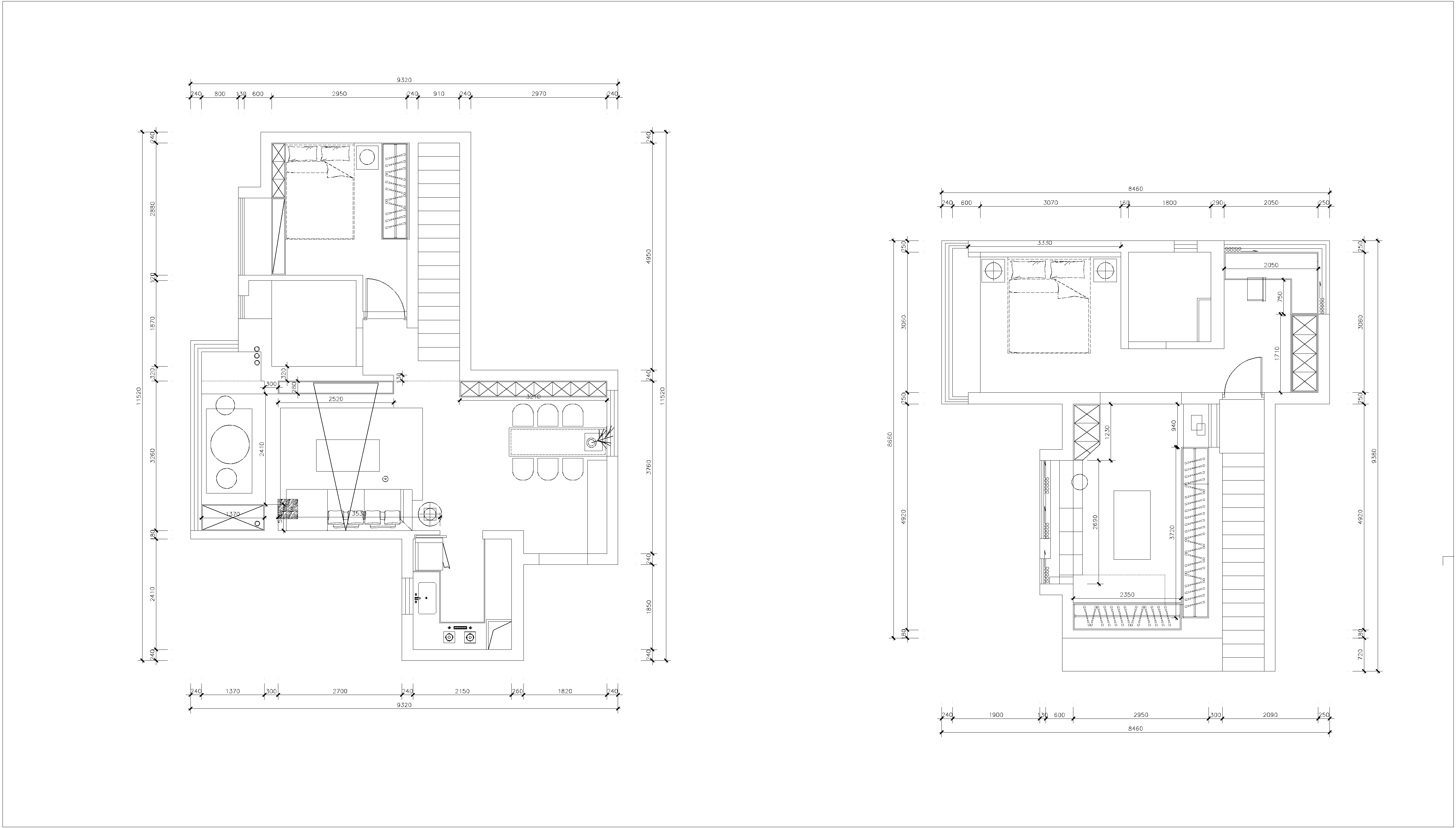
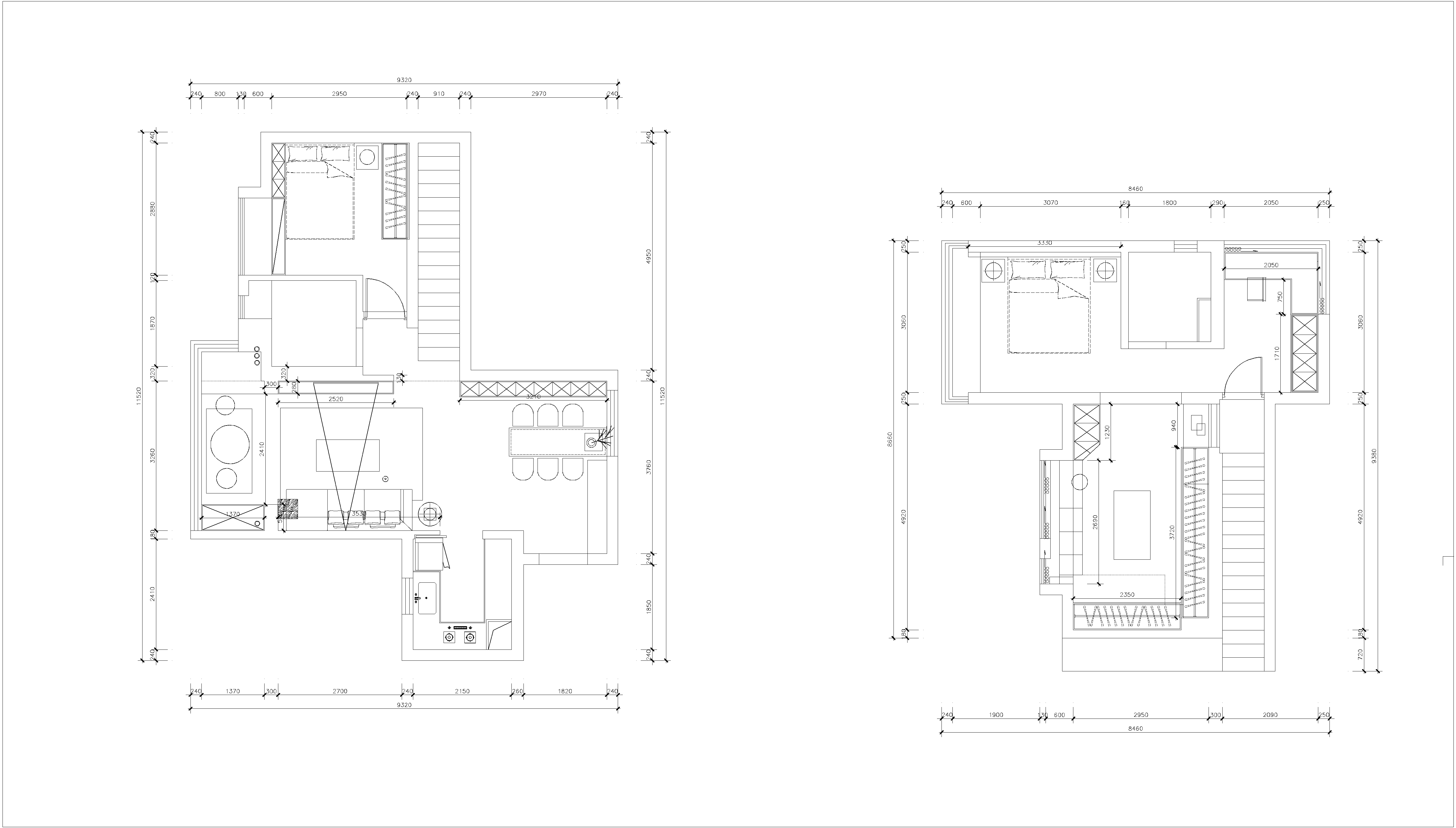
标签:复式、黑白简约、长桌
设计亮点:玄关向餐厅入侵,借用空间填列玄关柜;岛台式长桌划定餐区,打造公区核心。
二层借用一间卧室做衣帽间,主卧分半做书房,构建完备生活空间


开门即厅,外加开间有限,玄关发挥空间有限。
借用餐厅做悬浮玄关柜,轻盈立显,无拉手兼顾入户门开合顺畅。

双面勾勒,黑白做底,打造空间第一层秩序。
岛台式长桌竖向梳理空间,弱化块体对立,高脚椅自带矜贵,连缀简繁。

餐边柜引入灰玻,减轻量感侵袭,带动光影迷人。
现代风吊灯垂悬其中,暗示上下紧密关联。


饰板与格栅相携前行,规则打断创造视觉停顿点,谱写层次。
顶面回型吊顶与悬浮吊顶套组,带动视线在顶面蹁跹,灵动结构。

沙发松软褶皱彰显轻松意,组合式茶几顺应表达,果盘以不张扬红点亮空间。
地毯连接沙发茶几,将散落物件串联,成就生活场景。

电视墙并未重笔收纳,而是援引材质变换,将审美情绪进行书写。
穿行而过的黑色置物台,将墙体纵向延伸融合横向发展,丰盈层次。


厨房内置U型格局,取洗切炒盛依次安放。
上下双色的橱柜注入暖意,清洁区置于窗前,便捷水汽逸散。

上下、粗细、阴翳,短短楼梯将诸多元素串起化用,成为家中钟毓灵秀的一角。
灯带沿顶面向上攀爬,引诱好奇,牵引探索。


墙板排列是琴键般的优雅,接缝处灯火闪亮,时尚先锋。

柜体沿窗展开,鸡肋空间成为书房,为生活提供另一重的支撑。
双层短帘掩窗,根据场景调节光线进量,宜居感从细节处生发。


空间窄而要有收纳,怎样不显逼仄?
柜体安排成为首要问题,对立式排布预留好床位,摆放科技风灯,小范围布景也做的很出色。


轩怡家装官方联系方式:18529185208(免费预约量房、免费设计方案、免费精准报价
已有 78770 位业主获取了装修报价
㎡
选择您需要的专享服务

平台信息提交-隐私协议
· 隐私政策
暂无内容