小户型并不意味着将就与妥协。一个61㎡的家通过精心的装修设计,同样可以蜕变为温馨舒适的理想居所。轩怡家装以“实用美学”的理念,用合理布局赋予小户型灵魂,让家生长出温度。
案例信息
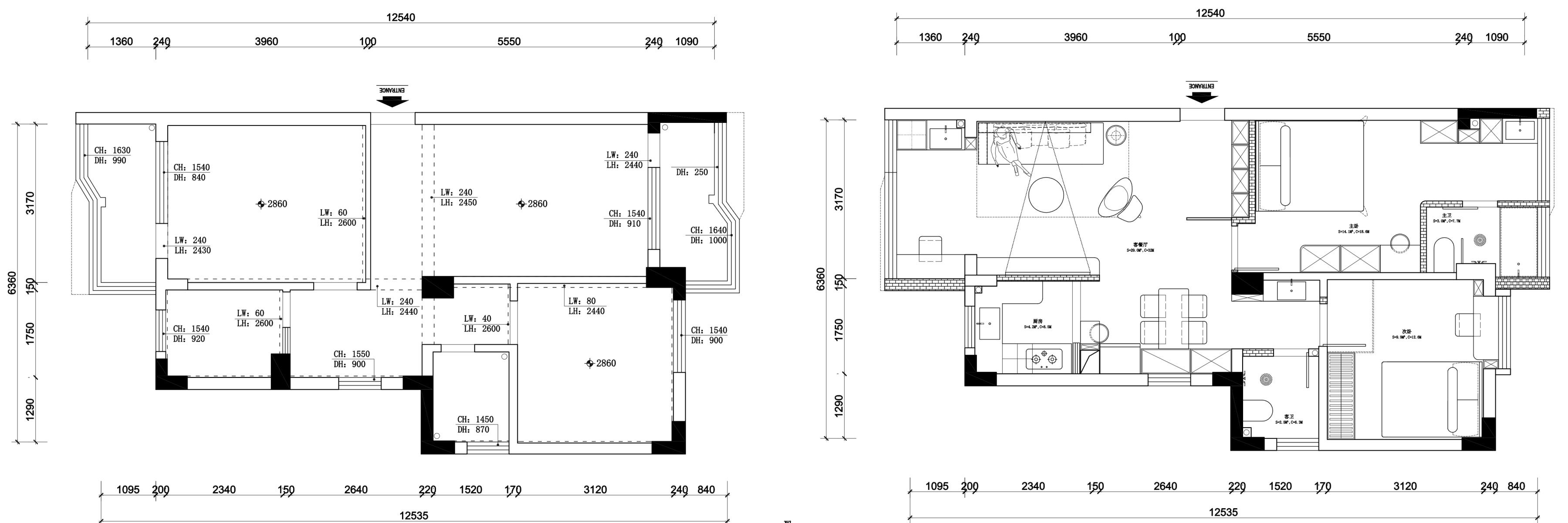
地点:广州 小区:黄石花园 户型:61㎡ 2房1厅 风格:原木奶油风

①敲掉不必要的隔墙,实现客餐厅一体化,增强空间互动交流;
②阳台一区多用,挖掘多场景使用,利用边角空间;
③多处嵌入暖光灯带,光影营造温馨基调。

推门而入,玄关柜的原木纹理在暖光灯带的映衬下,给足归家居住者仪式感,让人卸下一日疲惫。玄关柜底部悬空,方便鞋子穿脱收纳,上方封闭柜用于储藏杂物,美感和功能在此得到良好均衡。

得益于开放式布局和无主灯设计,客厅视野由逼仄转为开阔。棕色沙发与原木茶几的搭配,轻盈而富有自然气息。

电视墙设别具匠心:开放格展示心爱手办,一字电视柜则承担收纳重任,原木色与奶油白对话,温柔雅致。

原来的阳台被改造为多功能区,链接工作、收纳、家务多个场景,是本案小户型装修的点睛之笔。

餐边柜、木百叶的对话,在暖光灯带的加持下,更显静谧温柔。原木方桌搭配圆盘吊灯,在质朴温暖中,勾勒出一日三餐的日常浪漫。

厨房U型布局让小空间也能“五脏俱全”,即使夫妻二人共同下厨也毫不拥挤。纯白台面与柜体,搭配上浅色的砖,营造出明亮干净的烹饪环境。

日光穿过窗户,漫步于主卧空间,生活顷刻间具体可感。

针对局促的原始结构,轩怡家装通过一体化定制,实现了办公、梳妆、储物的三重功能。外置的主卫洗手台巧妙融入,既化解了格局尴尬,又让空间归于有序。、

次卧延续木地板与白墙的经典搭配,自然纯净显大。倚窗打造桌柜一体,小户型也就能扣出舒适功能区。通顶衣柜侧边设计开放格,方便随手放置物品,细节之处尽显人性化考量。

悬浮式洗手台的设计,让清洁打理变得轻而易举。圆形镜子与拼花背景墙结合,为空间注入了一抹绚丽与精致,带来视觉与使用体验的双重享受。
面积从来不是限制生活品质的因素。小户型装修在于敢打破格局,在于对每一寸空间的精细规划,更在于将居住者的情绪需求融入设计之中。愿本期轩怡家装的案例能为您家小户型装修带来一些灵感和启发。
Q:小户型适合做原木奶油风吗?会不会显得拥挤?
A:非常适合。原木的温润质感与奶油白的柔和调性,本身就是扩张空间感的不错组合。在色调保持统一的基础上,再加上采用简洁线条和无主灯设计,并利用镜面、玻璃等元素增强反射,就能营造出开阔的视感。
Q:类似本案61平米的装修,大概需要多少预算?
A:装修预算因地区、材料品牌、工艺复杂程度及个性化需求差异很大。建议与本地装修公司(如轩怡家装)沟通,获取基于您具体需求的详细报价。
Q:小户型如何装修才显大?
A:尽量减少不必要的隔断,打造开放式空间。如本案中客厅、餐厅、阳台的一体化设计,能很好地引入光线,扩大视觉纵深感。采用浅色调为主、选择低矮小巧的家具、增加储物空间保持整洁,也都是让小户型“显大”的常用手法。
轩怡家装官方联系方式:18529185208(免费预约量房、免费设计方案、免费精准报价)
已有 78770 位业主获取了装修报价
㎡
选择您需要的专享服务

平台信息提交-隐私协议
· 隐私政策
暂无内容