让整个朋友圈点赞的原木奶油风范本到底是怎么样?
深耕大湾区28年的轩怡家装,凭借权威家装资质与粤派设计实力,依托工程直管、30年水电质保、严苛工艺标准,在广州万科金域蓝湾给出答案,这套170㎡原木奶油风住宅,将收纳、动线、光影逐一打磨得细致入微,让居住的幸福感藏于方寸之间。
设计亮点:

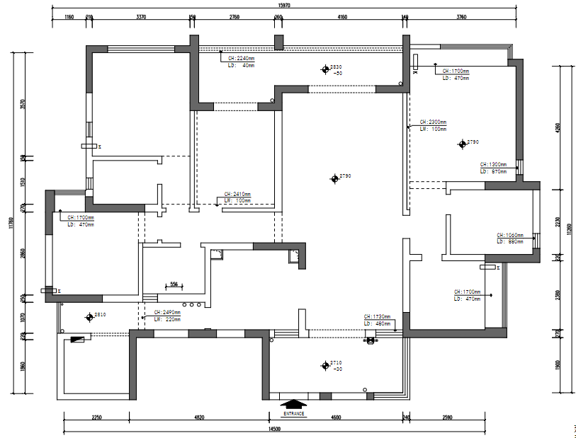
原始结构图

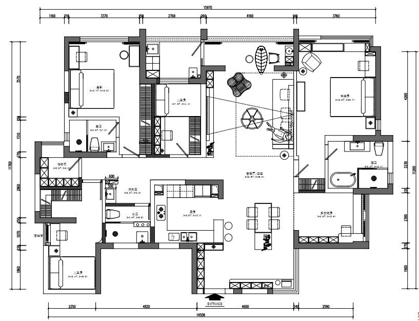
平面布置图
✅公共区域一体化打通,延展空间视觉,营造出温润通透格局
✅客厅阳台一分为二,晾晒区独立,不破坏整体美观与观景视野
✅卫生间三分离布局,功能独立,高效满足多人同时使用
PART.01
入户/玄关
推门而入,归家的疲惫感瞬间被消解。顶天立地玄关柜搭配通透玻璃隔断,既划分空间又不遮挡光线,让入户区明亮又有仪式感。

鞋柜下方刻意留空,日常换鞋无需弯腰开合,便捷又整洁;中部开放格随手摆放钥匙、香薰与小摆件,让入户的第一视角,就充满生活的小美好。
PART.02
客厅
全屋通铺温润木地板,奠定整个空间柔和治愈的底色。

奶杏色沙发慵懒柔软,是归家后最安心的休憩倚靠;


圆形可移动原木茶几,线条圆润灵动,随手挪动便能腾出一片活动区,轻松适配下午茶、休闲小聚等多种场景;

悬空电视墙采用悬浮造型,四周环绕柔和灯带,暖光漫射间,让整个客厅多了几分慵懒氛围感。左侧搭配原木格栅,自然的木纹肌理中和了墙面的单调,温柔又有层次;

墙面右侧嵌入开放格,杂志、摆件有了妥帖的安放之处;
下方原木地柜同样暗藏灯带,柜顶可摆放音响、绿植,柜内则收纳各类杂物,藏露之间,整洁与美感兼得;


穿过雅致的平拱门,便抵达阳台休闲区。轻透纱帘滤去刺眼强光,只剩柔光铺满茶桌,静坐于此品茶、观景,将喧嚣隔绝在外,独享一方治愈的慢时光。


PART.03
厨房
厨房井然有序,处处透着生活的烟火气。N型布局让洗、切、炒的动线流畅顺手,转身之间便能完成烹饪全流程。白色吊柜与原木地柜上下呼应,清爽中带着温暖。

最贴心的是吊柜下方增设了一排开放式调料柜——瓶瓶罐罐随手可取,既不占用橱柜台面,也不用弯腰翻找,下厨效率直接翻倍。厨电全部嵌入式设计,与柜体完美融合,台面空无一物,视觉干净利落。
PART.04
餐厅
走进餐厅,原木与奶油色温柔交织,安静而从容,让人不自觉地放慢节奏。


一张长方形岛台餐桌居于中央,岛台侧面嵌入轨道插座,咖啡机、烧水壶随用随插,日常使用非常便捷;


奶油风餐椅柔软舒适,上方一盏吊灯垂落,暖光正好打在桌面,让每一餐都多了一份仪式感;

定制餐边柜采用藏露结合的设计,中间留空区域可摆放咖啡机、杯具与花艺摆件,封闭柜收纳各类杂物,让餐厅始终保持整洁温馨,烟火气与精致感完美平衡。

PART.05
主卧
主卧整体温柔而静谧,奶白色的基调让人一进门便松弛下来。

奶白色软包床头触感亲肤,搭配简约床品,营造出静谧治愈的休憩氛围;

墙面延伸出一体化梳妆台,嵌入式镜子搭配开放格,护肤品、化妆品都能井然有序收纳,晨起梳妆也能变得惬意从容;

飘窗铺就柔软软垫,旁侧开放格兼顾收纳与展示,闲时倚窗晒太阳、静心小憩,尽享独处的松弛时光。

PART.06
次卧
次卧风格简洁大方,浅棕色软包床头温润耐看,墙面无多余装饰,整体空间干净通透、静谧安宁。


床边放置了一张电脑桌,搭配人体工学椅子,轻松满足日常办公或游戏需求;

床尾靠墙放置一张原木长桌,桌面宽敞,开放格内可摆放书籍、摆件或收纳日常小物,既能作为梳妆台,也能临时办公。整体简约克制,却处处透着舒适的生活秩序。

PART.07
书房
书房整体静谧雅致,推门而入,整面墙的定制书柜便映入眼帘。开放格与封闭柜错落结合,内嵌柔和灯带,暖光轻洒在书籍与藏品之上,温润又有格调。

书柜无把手极简设计,视觉干净利落;柜体延伸出一体化书桌,采光充足,阅读、办公都能沉浸其中;

飘窗铺上软垫,午后阳光洒进来,捧一本书,坐在这里便能度过一个下午。这里既是高效工作的场域,也是精神栖息的角落。

PART.08
卫生间


无论你想打造原木奶油风还是其他风格,都可拨打轩怡家装官方电话18529185208,获取专属全案设计方案,解锁理想家模样。
小区 | 万科金域蓝湾
户型 | 平层
居室 | 3室2厅3卫
面积 | 170㎡
已有 78770 位业主获取了装修报价
㎡
选择您需要的专享服务

平台信息提交-隐私协议
· 隐私政策
暂无内容