轩怡家装以现代简约风为基调,以5大生活方式为发生点,通过一系列精妙的空间重构与动线梳理,将这个家的重心从「形式的统一」转向「生活的流动」,让光与空气在室内自由穿行,成就兼具松弛感与功能性的宜居地。

·案例信息
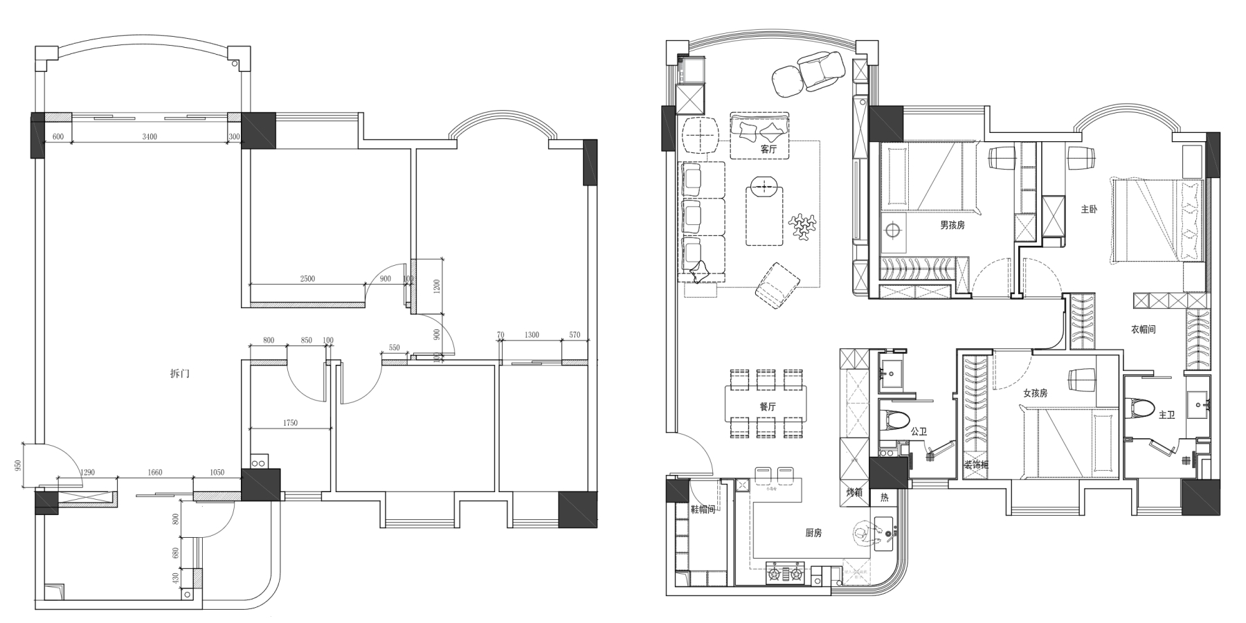
地点:佛山 小区:丽雅苑 户型:125m² 3房2厅 风格:现代简约风
·设计亮点
1.厨房和小阳台合并,让出部分空间做储藏室,减压全屋收纳;
2.厨房做开放式,联通客餐厨,公区采光得到明显改善;
3.男孩房改出折墙做定制柜,为当下生活场景提供便捷,也为门位关系提供了调整空间;
4.主卫在保留功能性的基础上,进行内缩,为衣帽间留出相对富裕的空间。

↑效果图·实景图↓

公区一改对整体性的常规追求,转用岩板分割场域,同步用灯带做勾勒,平整之中塑造出丰富的视觉层次。阳台改为客厅的功能延伸,空间叙事节奏过渡自然。

背景墙被护墙板温柔包裹,肌理美绵延其中。绿植成为点睛之笔,结合深浅、光影对比撑起空间结构,为简约空间注入盎然生机。
沙发是其中柔软的存在,松弛线条,哑光材质,都与生活松弛感不谋而合。

电视柜上更见手法,以悬浮为题,以轻盈为本,将功能具象化相应块体,在简明表达与丰富情景间取得平衡。深浅材质间的张力,令视觉更加立体。

餐厅围绕餐桌打开,餐边柜以多变形式承载日常功能场景,满足生活动态需求。

桌椅流畅纤薄,符合现代风的定题表达。细节处理更加细腻,深浅两色形成精妙反差,气质低调彰显。

厨房整体进行了重构,将小阳台合并进来,边侧内缩挤出储藏室。空间做开放式的处理,以吧台串联起餐厨,将单独功能区汇集成整体,烹饪时光得以与家人共享。

洗手台外置+干湿分离的布局,成就简洁流畅的功能空间。黑色线条在结构内穿行游走,叠加上镜面与灯带,让设计魅力贯穿始终。

设计师将休息区、衣帽间与主卫按一字型从容排布,经由细微的比例调整,将布局平衡至完美。通过个性化设计解决结构问题,逼仄感于生活中消隐。
结构、光影、材质在空间中铺排,保留了风格简约主轴的同时,又在微观尺度上补足精致细节。

定制柜充分应用多种材质形式,完成风格的多样化表达,从单纯功能块体转变成美学演绎,打造出风格别致的功能空间。

主卫虽经内缩,但采用U型布局化解进深问题,加长镜柜则同时满足收纳与拓展视觉空间的双重需求。

女孩房功能布局沿墙展开,结构与光影彼此成就。
床侧定制柜体巧妙延伸,将开放格、展示柜与小桌台合而为一,无缝链接学习、展示与收纳多种生活场景,诠释出专属于少女的精致与惬意。

男孩房两处折墙设计是空间的灵魂所在,既为墙面赢得了定制柜体的容量,又保证了内部空间的平整与纯粹。

多种材质肌理颜色碰撞产生奇妙的化学反应,赋予空间耐人寻味的细节与丰盈质感,为男孩提供了兼具隐私性与功能性的个人天地。
轩怡家装官方联系方式:18529185208(免费预约量房、免费设计方案、免费精准报价)
已有 78770 位业主获取了装修报价
㎡
选择您需要的专享服务

平台信息提交-隐私协议
· 隐私政策
暂无内容