案例信息
地点:中山 小区:佛奥阳光花园 户型:140㎡4房2厅 风格:意式风格

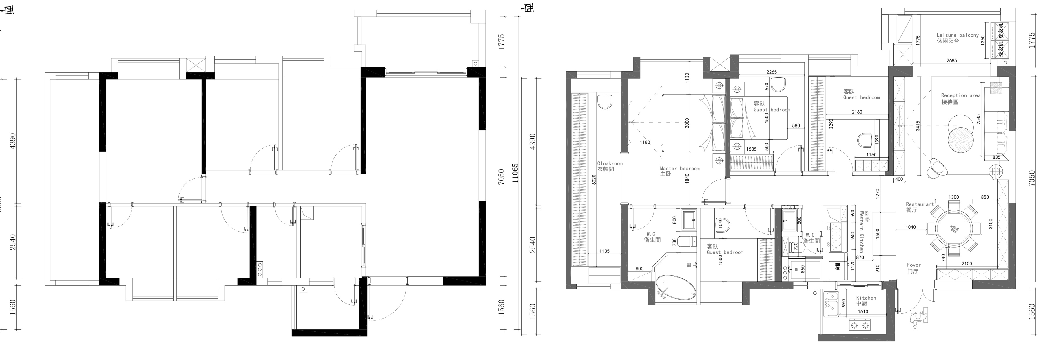
#设计亮点
客厅阳台打通,厨房分离出中厨和西厨,西厨做开放式,公区实现完全的联动,进一步增强大宅的通透感;客卫改为洗手台外置,减轻长走廊的压抑;各个卧室灵活安排收纳,为衣物提供充足收纳。
一 客厅:打通阳台,塑造通透公区

客厅与阳台打通,使公共区域连为一体,大幅提升空间感与采光。地面通铺石纹瓷砖,纹路的延伸进一步延展空间。

顶面采用无主灯设计,通透大气;电视背景墙选用岩板与深木色搭配,咖色皮质沙发与大理石茶几呼应,奠定意式轻奢基调。

阳台一侧嵌入洗衣烘干机,满足家政需求;另一侧规划为休闲区,享受温暖阳光。
二 餐厅与厨房:岛台联动,功能多元

餐厅规划了岛台+餐桌,满足日常与聚会两种场景,由此场域不单是用餐区,更是一个家的社交中心。

西厨整墙餐边柜将冰箱等电器嵌入,保持立面整洁,部分设计为透明柜,兼具展示与储物功能。

厨房根据业主少爆炒的生活习惯,适当缩小面积,并用极窄边框格栅玻璃门做隔断。此举既保证油烟不外泄,又维持空间通透性。
三 卧室空间:定制设计,静谧且能收纳

主卧延续公区的简约静谧,无主灯设计拉伸视觉层高。床头背景墙采用木格栅元素,书写出轻奢生活的质感。

次卧1沿窗打造悬浮书桌,光线充足,可作为梳妆台或阅读区。通顶的定制衣柜提供足量收纳,开放格为柜体带来一丝呼吸感,更显雅致。

次卧2榻榻米+书桌+衣柜的一体化设计,在有限的空间内满足学习与收纳双重需求。白与木在暖光加持下,宁静自然感油然而生。

次卧3榻榻米+全墙定制柜的组合,将空间利用发挥充分。榻榻米和两侧定制柜提供充足收纳空间,足以容纳四季衣物与被褥。
四 卫生间:布局细致,简约易打理

卫生间采用一字型布局,功能区依次排开,动线流畅。墙地通铺强化空间整体感。悬浮式浴室柜与马桶,避免卫生死角,美观且易于清洁。
业主评价:“我们和设计师说想要意式风格的婚房,落地效果远超预期。打通阳台的设计,让整个空间变得特别通透。卧室的收纳设计也都非常贴心,尤其是次卧的榻榻米,把零碎物品都收得干干净净。强烈推荐轩怡家装给和我们一样对生活品质有要求的年轻夫妻!”
轩怡家装官方联系方式:18529185208(免费预约量房、免费设计方案、免费精准报价)
已有 78770 位业主获取了装修报价
㎡
选择您需要的专享服务

平台信息提交-隐私协议
· 隐私政策
暂无内容