在烟火气满满的广州,如何打造浪漫又实用的美家?轩怡家装作为粤派设计标杆,基于十万家庭需求洞察,以「五宅一生」体系为支撑,用更懂广州人的设计,把浪漫与实用装进每个家。
本案是轩怡家装为广州业主量身打造的90㎡法式奶油风住宅。依托28年工艺积淀,轩怡家装精准聚焦居住痛点,通过调整门洞、优化动线、弱化梁位,实现了浪漫格调与实用需求的完美相融。而这一切的精准落地,离不开轩怡家装贯穿始终的工程直管模式。在此基础上,30年水电质保带来的长期信心,以及支付宝资金存管保障的全程安心,共同为业主构筑起从设计到入住的品质护航。
设计亮点:

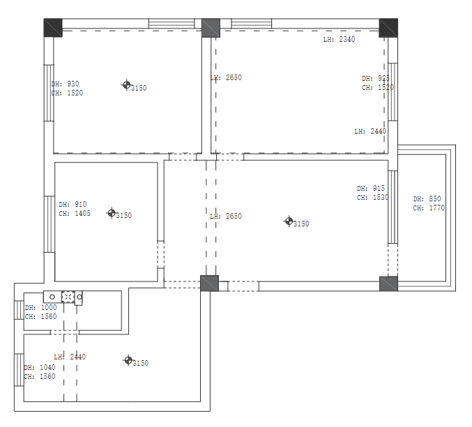
原始结构图

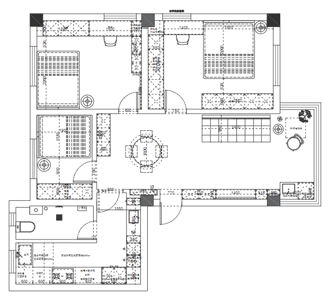
平面布置图
✅调整两个房间门洞,利用墙后空间打造整面通顶衣柜,实现收纳最大化
✅优化过道与卫生间布局,外置浴室柜与家政区,如厕洗漱互不干扰
✅阳台梁做弧形处理,客厅梁搭配侧边造型与灯带,弱化突兀感
PART.01
客厅
客厅是家的视觉中心,也是日常放松的角落。墨绿色直排沙发线条利落,自带沉稳复古质感,成为客厅的点睛之笔。

沙发背景墙以简约石膏线勾勒轮廓,搭配蝴蝶与花卉主题装饰画,灵动雅致,无需繁复堆砌,便尽显法式优雅;

电视背景墙采用整面一体化定制设计,将收纳、展示、电视区与家政功能完美融合。
柜体搭配长虹玻璃门,通透轻盈,既可陈列心爱藏品,也能隐匿生活杂物。中间以法式拱门做点睛造型,电视嵌入其中,台面可摆放相片与小物,下方抽屉让收纳更完整利落;

靠近阳台一侧顺势嵌入洗衣机,充分利用边角空间,让日常生活动线更流畅高效。柔和光线漫洒全屋,轻轻勾勒出法式客厅独有的慵懒与温柔。

PART.02
餐厅
餐厅紧邻客厅,一张黑色餐桌沉稳地置于空间中央,上方悬挂一盏叶片造型别致的风扇灯。微风轻拂时,为用餐时光平添几分惬意。

一侧定制整排收纳柜,藏露结合,满足餐具、杂物的收纳需求,让空间始终整洁有序;
最具亮点的是粉色拱门餐边柜,既承担收纳功能,又作为玄关过渡区域柔和衔接。柔和的粉色自带浪漫氛围,拱门内嵌灯具,暖光轻洒,氛围感十足;

台面可随手放置杯子、钥匙等小物件,实用贴心,下方柜体进一步扩容收纳,完美兼顾美观与功能性。

PART.03
厨房
厨房采用 L 型布局,洗、切、炒一气呵成,日常烹饪高效顺手。嵌入式厨电与柜体融为一体,释放更多台面空间,让下厨更从容。

橱柜一浅一深相映,温柔中带着复古腔调,与全屋法式氛围自然呼应;充足的收纳空间,让台面时刻保持整洁利落,每一次下厨都轻松有序。

PART.04
主卧
主卧里,粉色与奶油白在墙面上温柔交织,安静而舒缓。

黑色法式雕花安娜床尽显优雅,搭配绿色床品,复古雅致,法式韵味悄然流露;
床侧衣柜延伸出一体化梳妆桌,搭配拱形长虹玻璃柜门,通透又精致,护肤品、化妆品收纳有序,每天梳妆都多了一份仪式感;

床尾定制满墙衣柜,最大化利用墙面空间,衣物、被褥统统收纳,让卧室始终整洁清爽,温柔与实用兼具。

PART.05
女儿房
女儿房延续整屋的法式奶油风基调,整体空间干净通透、温柔甜美,满足孩子的浪漫幻想。

床头摆满可爱玩偶,搭配法式奶油风窗帘,温柔又治愈;
床尾衣柜延伸出多功能桌,既可作为书桌满足学习需求,也能充当梳妆桌,一物多用,适配成长不同阶段;

定制整面收纳柜,专门用来摆放摆件、玩偶,珍藏孩子的小美好,让童趣与收纳完美结合。

PART.06
卫生间
针对业主使用需求,卫生间贴心设计双马桶分区,男女使用更卫生便捷,彻底解决使用高峰期的尴尬。

洗手台外置布局,洗漱与如厕互不干扰,就近设置的家政收纳区让日常使用更高效;
绿色柜门与全屋复古色调自然呼应,柜内的收纳空间可将洗护用品悉数藏起,整洁又实用;

轩怡家装始终秉持靠谱初心,为广州业主打造理想居所。若你也想拥有同款法式奶油风新家,解锁浪漫与实用兼具的居家体验,可拨打官方电话:18529185208,专业团队将为你量身定制个性化全案。
项目信息:
小区 | 中山一路13号
户型 | 平层
居室 | 3房1厅1卫
面积 | 90㎡
已有 78770 位业主获取了装修报价
㎡
选择您需要的专享服务

平台信息提交-隐私协议
· 隐私政策
暂无内容