“这个家真正实现了我们对美好生活的所有想象。”业主谈及轩怡家装完成的156㎡现代轻奢住宅时如此感叹。在快节奏的广佛都市圈,如何为三代同堂的家庭打造一个既显高等质感,又完美契合多元生活需求的居所?本案交出了一份令人惊艳的答卷。轩怡家装秉持“尊重需求、融合功能、优化缺陷”的设计理念,将现代轻奢风格的精髓与实用主义深度结合,成就了这个充满智慧与温度的家。
项目信息
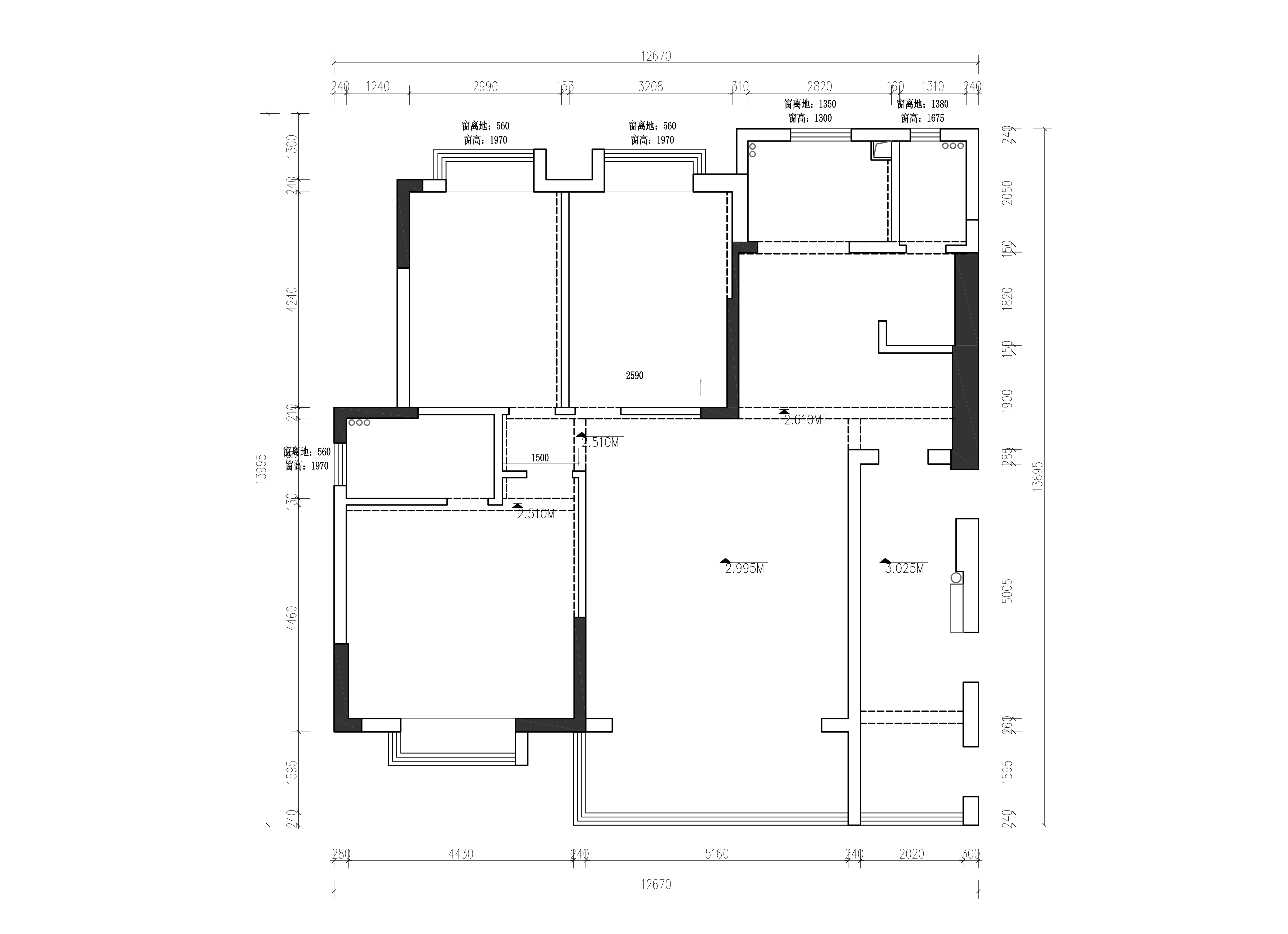
地点:佛山
小区:东星新村
户型:156㎡ 三房两厅
风格:现代轻奢风格


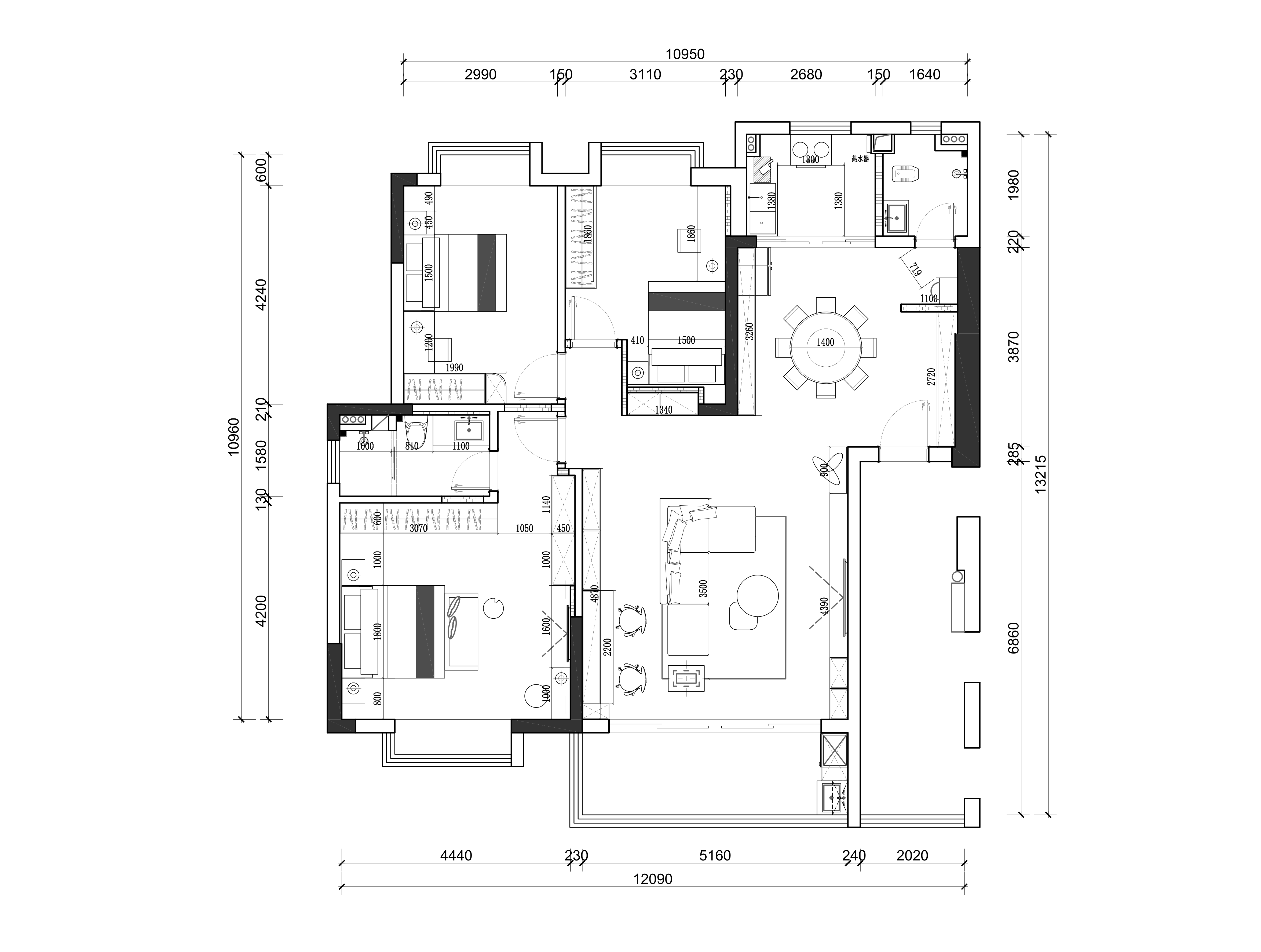
设计的起点是倾听。业主希望客厅能兼具书房功能,同时需要满足特定的神位朝向要求,且原始户型存在卫生间正对大门的尴尬。

轩怡家装没有采用模板化方案,而是通过精细的定制化设计——在开阔的横厅中嵌入一面兼具展示与收纳功能的书柜墙,既满足了男主人居家办公与阅读的需求,又保持了空间的整体性与高等感;

通过巧妙调整布局,既满足了特定的朝向要求,又确保了客厅的美观与和谐;优化玄关动线,彻底解决了入户隐私问题。
现代轻奢不止于视觉的奢华,更在于空间的高效率与复合。轩怡家装大胆打破传统空间界定,将客厅、书房、会客功能创新性融合于同一开阔区域。

亮面瓷砖与无主灯设计拉伸了视觉尺度,黑色大理石与胡桃木的电视墙构成质感对话,而一整面书墙的存在,让这个家的重点区不仅是休闲中心,更是文化精神领地。
餐厅的定制餐边柜采用折角设计,在保证强大储物功能的同时,引导出更流畅的生活动线。这种“融合”思维,让156㎡的空间实现了远超面积的功能承载,尤其适合注重空间效率的广东装修需求。

真正的轻奢感,源于对细节的细致苛求。全屋以米白、高等灰与胡桃木为主调,通过材质本身的肌理与色彩碰撞来营造层次。
天花以精致的线性灯带替代繁复装饰,光线成为比较好的设计师,勾勒出空间轮廓。
主卧半边胡桃木背景墙带来静谧的包裹感,定制通顶衣柜完美隐匿。

女儿房以柔和的粉色搭配一体化定制家具,甜而不腻。

“从沟通方案到落地入住,轩怡家装团队真正做到了想我们所想。现在这个家,老人有安静的空间,孩子有的天地,我和爱人能在客厅兼书房里高效率工作与放松。神奇的是,那么多功能融合在一起,家里却一点也不显乱,反而有种高等酒店般的秩序感和松弛感。来参观的朋友都说,这才是有品质的装修,钱花在了刀刃上,每一处都经得起细看和推敲。”
轩怡家装官方联系方式:18529185208(免费预约量房、免费设计方案、免费精准报价)
已有 78770 位业主获取了装修报价
㎡
选择您需要的专享服务

平台信息提交-隐私协议
· 隐私政策
暂无内容