素墙藏雅韵,黑白绘清欢
本套180㎡大平层
没有浮夸造型
没有繁杂堆砌
于留白处藏质感
于简约中见温度
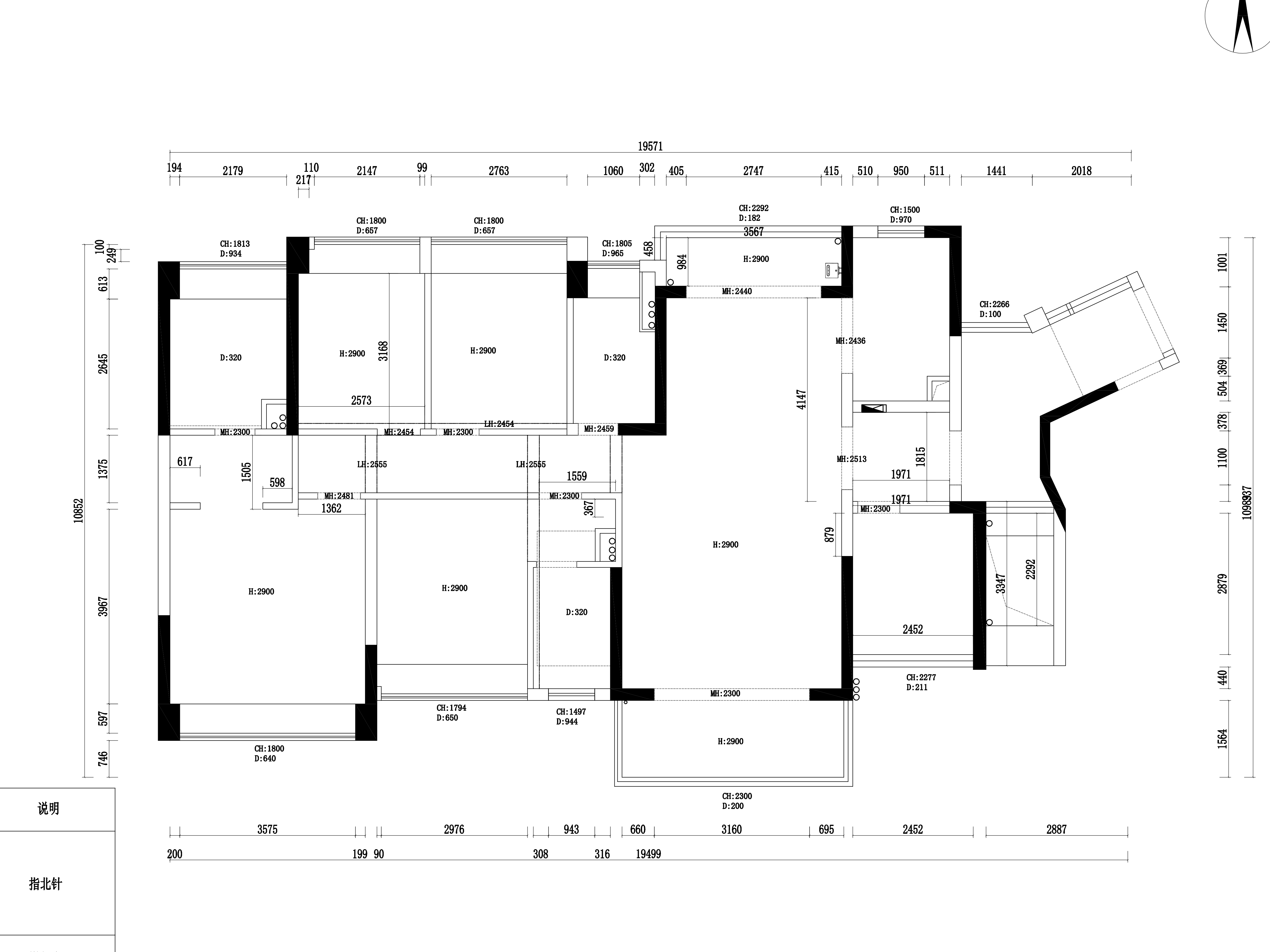
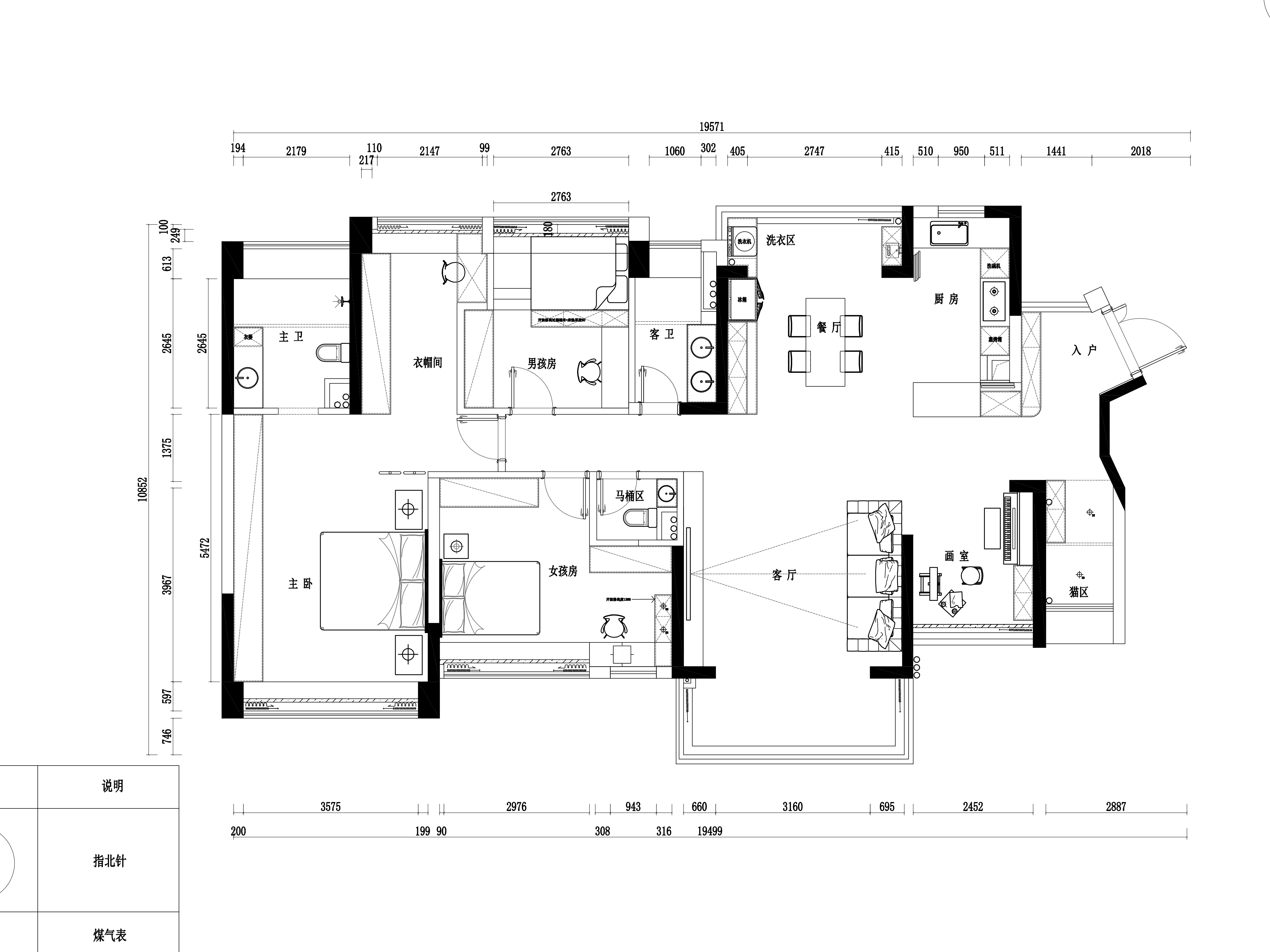
户型图:


设计亮点:
1双阳台全面纳入公共区域,破除空间隔断,延展视觉边界;
2原小次卧改造为开放式多功能室,无隔断设计放大整体空间感;
3开放式厨房布局,搭配一体式餐岛台,视觉与实用双重显大。
玄关
入户没有厚重柜体的压抑感,现代岩板铺陈开篇,黑灰大理石纹理如水墨淡淡洇开,自带沉静气场。

转角墙面月球造型兼顾艺术感与施工精度,一进门便褪去外界浮躁,迎来专属归家仪式感。

客厅
客厅舍弃传统主灯,改用无主灯全氛围灯光,光线柔和均匀,勾勒出空间的纵向层次,让极简氛围更显高级。

地面通铺哑光柔光砖,从客厅一直延伸至阳台区域,无缝通铺的工艺消除空间边界感,让180㎡大平层的开阔尺度被无限放大,光脚踩触也自带温润质感。

经典黑白配色做到极致克制,深黑色皮质沙发线条利落挺括,没有多余雕花与装饰,搭配几何抽象挂画灯,冷暖碰撞间尽显低调质感。

电视全嵌入式隐入纯白墙体,搭配黑色极简电视柜,没有一丝冗余线条。

一旁搭配慵懒感单人懒人椅,角落点缀鲜切绿植,纯白背景衬得生机感恰好,随手定格便是家居杂志的高级实景,极简却不空洞。

针对原户型后方小次卧,大胆改造为开放式多功能休闲区,打破空间壁垒,实现空间无界互通。

餐厨
L型开放式厨房搭配隐形推拉门,日常全开拓展空间,烹饪时闭合阻隔油烟,兼顾颜值与实用性。

餐厨相连,落地窗引入满室自然光,黑白撞色岛台简约大气,垂落的线性灯带晕染温柔质感。

全墙定制餐边柜做到顶,冰箱、洗衣机尽数嵌入,柜体线条平整利落,收纳与家政一体,视觉干净无杂乱。

卧室
主卧以大面积留白为主,墙面无任何装饰,黑色软包床成为视觉重心,极简落地灯、云朵全身镜点缀其间,静谧又高级。

床尾到顶衣柜收纳充足,独立衣帽间搭配悬浮化妆桌,简约易清洁,打造专属私密休憩地。

女儿房
两间儿童房差异化设计,延续全屋极简基调,女儿房以纯白墙面搭配碎花软床,柔和甜美不失简约质感;
男孩房
男孩房榻榻米一体化布局,方格柜巧妙分隔睡眠与学习区,集休憩、学习、收纳于一体,适配孩子成长需求。
卫生间
三间卫生间均做三分离设计,马桶区独立划分,极简硬装搭配干净配色,整洁易打理,完美适配四口之家日常使用。
轩怡家装官方联系方式:18529185208(免费预约量房、免费设计方案、免费精准报价)
已有 78770 位业主获取了装修报价
㎡
选择您需要的专享服务

平台信息提交-隐私协议
· 隐私政策
暂无内容